ダイワハウスの分譲住宅・宅地
Daiwa House

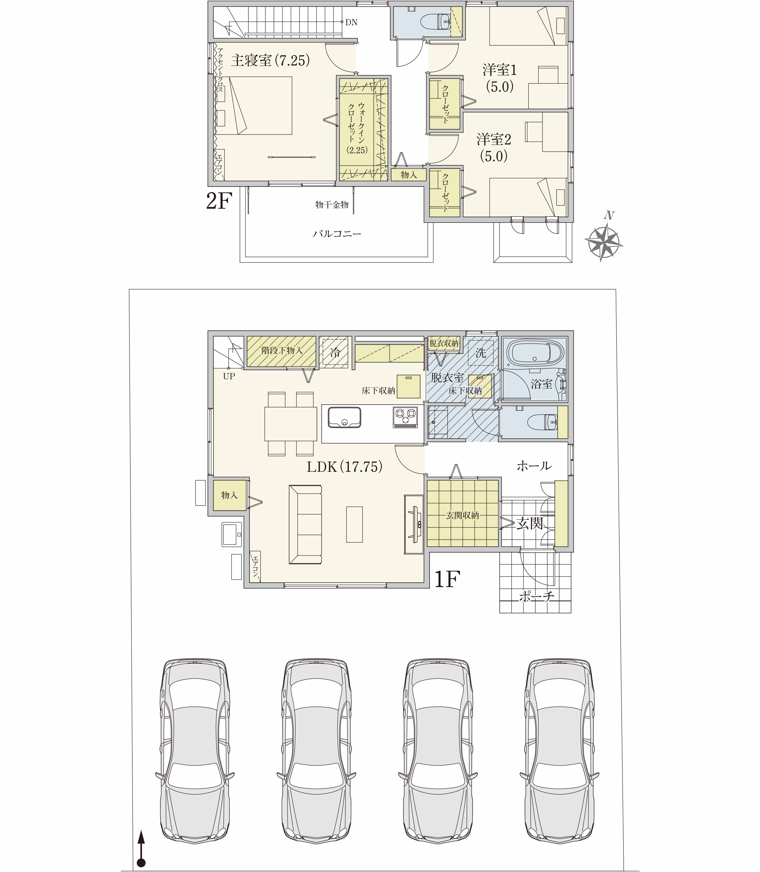
参考プラン ※建物プランは参考例であり、購入者はこのプランに関係なく、自由にプランニングできます。

参考プラン
III-6号地

3LDK

  • +ウォークインクローゼット

土地面積/173.58㎡(約52.50坪)

延床面積/103.18㎡(約31.21坪)

  • □1階床面積/55.81㎡(約16.88坪)
  • □2階床面積/47.37㎡(約14.32坪)
建物価格(税込)/3,380万円
  • 太陽光発電
  • 外張り断熱通気外壁
  • 光触媒コーティング
  • エコジョーズ
  • ガス併用
  • エアコン2台(LD・主寝室)
  • 室内物干し
  • カーテン
    (全居室)
  • カーテンレール(全居室)
  • レースカーテン(全居室)
  • 照明器具(居室)
  • 浄水器内蔵混合水栓
  • ガラストップコンロ
  • 食器洗浄乾燥機
  • キッチン人大ワークトップ
  • 床下収納(台所・洗面室)
  • 玄関土間収納
  • ウォークインクローゼット
  • ワイドバルコニー
  • 断熱保温浴槽
  • トイレ2ヶ所
  • 防犯合わせ複層ガラス(1階のみ)
  • 録画機能付カラーモニターインターホン
  • 前面道路
    (6m以上)
  • 南道路
  • 公共下水道
  • 耐震等級3
  • 長期優良住宅認定対象物件
  • 住宅性能評価書

※掲載の間取・外構植栽図は設計図書を基に描き起こしたもので実際とは多少異なる場合があります。
※建物価格に屋外給排水工事費、ガス工事費、電気工事費・地盤補強工事費等が含まれます。
※家具・家電・備品・車等は価格に含まれておりません。

大和ハウス工業株式会社 DAIWA HOUSE INDUSTRY CO., LTD.
本社 〒530-8241 大阪市北区梅田3丁目3-5 大和ハウス大阪ビル TEL:0120-590-956

建設業許可番号・国土交通大臣許可(特-2)第5279号
宅地建物取引業者免許番号・国土交通大臣(16)第245号
(一社)大阪府宅地建物取引業協会会員
(一社)不動産協会会員
(公社)近畿地区不動産公正取引協議会加盟

住まいカテゴリ
このページの先頭へ戻る

大和ハウス工業株式会社

Copyright DAIWA HOUSE INDUSTRY CO., LTD. All rights reserved.