-
現地街並み -
現地街並み -
現地街並み -
※写真は令和6年7月撮影の現地付近空撮にCG加工を施したものです。 -
3号地※家具・家電・備品等は価格に含まれません。 -
3号地※家具・家電・備品等は価格に含まれません。 -
3号地※家具・家電・備品等は価格に含まれません。 -
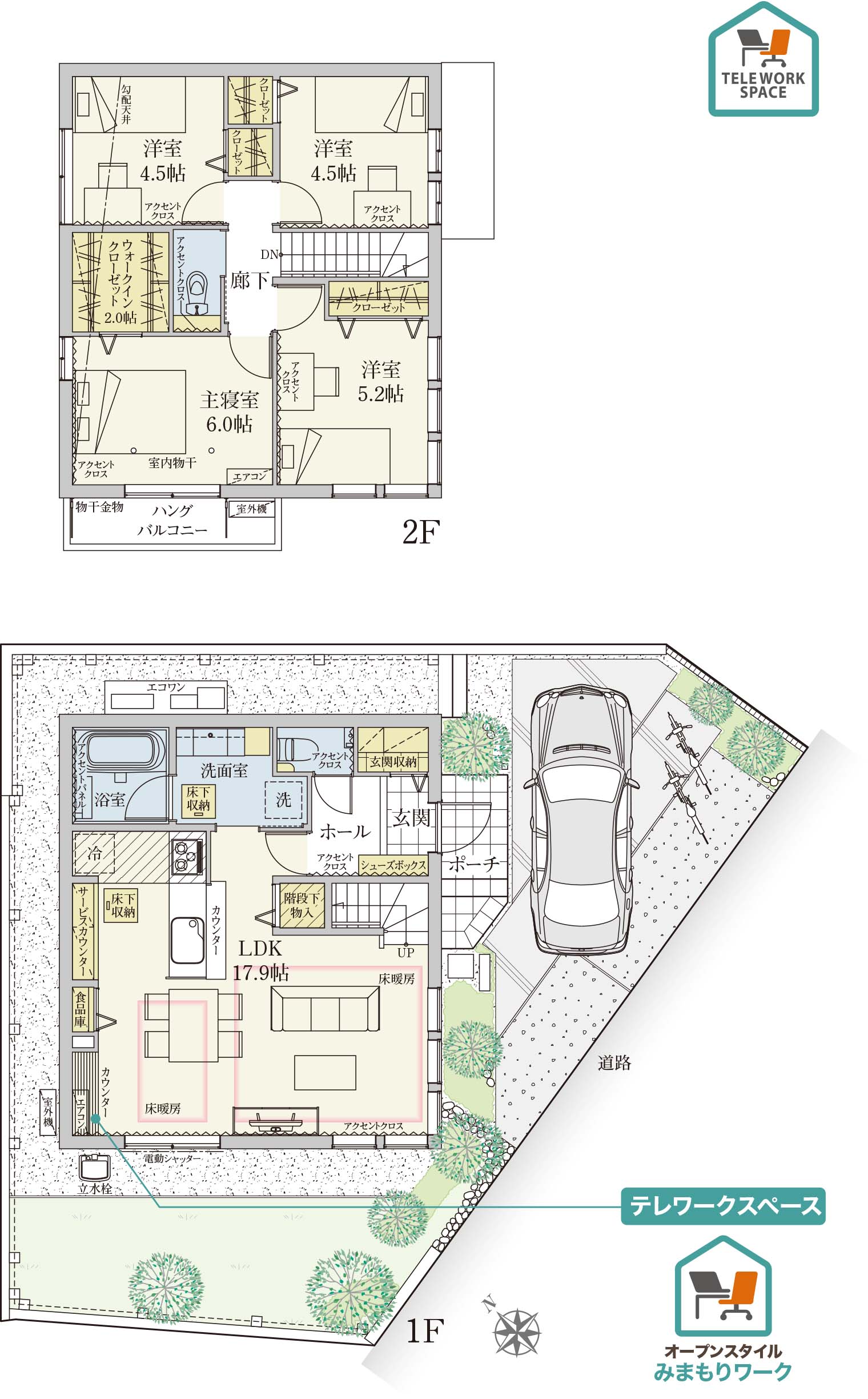
5号地※家具・家電・備品等は価格に含まれません。 -
5号地※家具・家電・備品等は価格に含まれません。 -
-

















































