- Livnessトップ
- 買いたい
- 兵庫県(青木駅)
- マイシティレックスマンション東灘コーストアヴェニュー
マイシティレックスマンション東灘コーストアヴェニュー

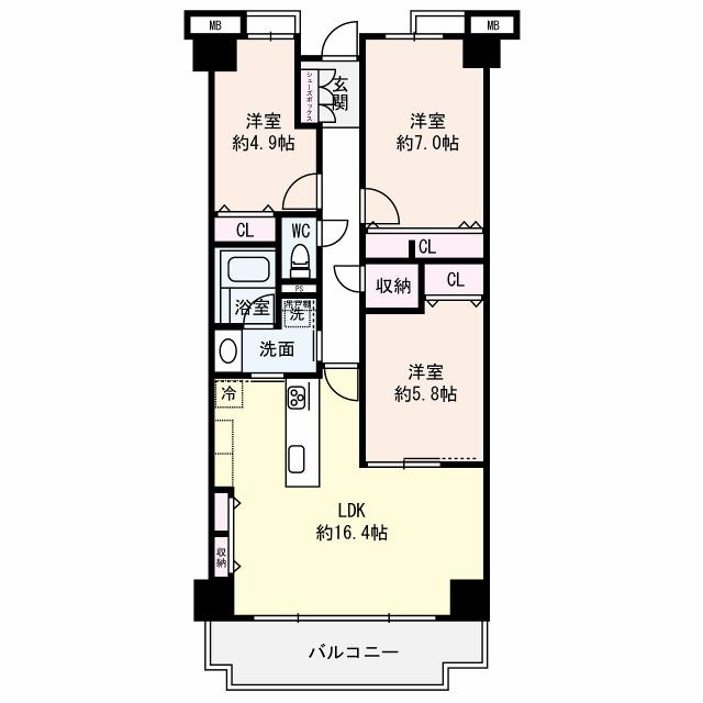
間取り図

間取り図

写真をクリックして拡大
◇阪神本線「青木」駅徒歩9分 ◇JR東海道本線「摂津本山」駅徒歩23分 ◇南東向き&5階部分で陽当たり良好 ◇収納豊富な3LDK ◇2025年10月中旬リフォーム完成
-
-
- 価格
- 2,998 万円(税込)
-
- 物件種別
- 中古売マンション
-
-
-
- 所在地
- 兵庫県神戸市東灘区青木2丁目
-
- 交通
-
阪神電鉄本線「青木」駅 徒歩9分
東海道本線「摂津本山」駅 徒歩23分
-
-
-
- 間取り
- 3LDK
-
- 専有面積
- 75.25m²
-
- 築年月
- 1990年07月(築35年)
-
- 所在階
- 5階
-
-
リフォーム(リノベ)済
リフォーム・リノベーション内容
■全居室フローリング貼替(LL40) ■全居室クロス貼替(壁・天井) ■全居室木巾木交換 ■食洗器付きフルフラットキッチン交換(リクシル) ■トイレ交換 ■各物入可動棚 ■分電盤・建具交換 ■玄関扉枠塗装 ■電気式浴乾付ユニットバス交換(リクシル)■網戸張替 ■給湯器交換 ■洗面化粧台(Panasonic)交換 ■洗面・トイレCF貼替 ■玄関床フロアタイル上貼 ■カーテンレール・インターホン交換
物件の特徴
地図
※ 地図内のマーカーの位置は実際の所在地とは多少異なる場合があります。
物件概要
- 物件ID:
- 98681
-
- 物件名
- マイシティレックスマンション東灘コーストアヴェニュー
-
- 物件種別
- 中古売マンション
-
- 建物名
- マイシティレックスマンション東灘コーストアヴェニュー
-
- 所在地
- 兵庫県神戸市東灘区青木2丁目
-
- 交通
-
阪神電鉄本線「青木」駅 徒歩9分
東海道本線「摂津本山」駅 徒歩23分
-
- 価格
- 2,998万円(税込)
-
- 建物の建築年数
- 1990年07月(築35年)
-
- 管理費(月額)
- 8,280円
-
- 修繕積立金(月額)
- 10,920円
-
- 構造
- SRC造
-
- 階数/所在階
- 地上15階/ 5階部分
-
- 専有面積
-
75.25m²
-
- 間取り
- 3LDK
-
- バルコニー面積/主要採光面
- 11.1m² / 南東向き
-
- ルーフバルコニー/使用料(月額)
- -
-
- 総戸数
- 286戸
-
- 専用庭/使用料(月額)
- -/-
-
- 土地権利
- 所有権
-
- 用途地域
- 第一種住居地域
-
- 管理会社
- 東洋近畿建物管理(株)
-
- 管理形態/管理員の勤務形態
- 管理会社に委託/ 日勤管理
-
- 分譲時 売主
- -
-
- 施工会社
- (株)長谷工コーポレーション
-
- 駐車場/使用料(月額)
-
空無/0円
-
- 駐輪場/使用料(月額)
- 空有/100円
-
- バイク置き場/使用料(月額)
- 空有/1,000円~1,500円
-
- 取引態様
- 一般
-
- 現況
- 空家
-
- 引き渡し可能年月
- 相談
-
- その他費用
-
- 備考
- ◇2025年10月中旬リフォーム完成◇南東向き&5階部分で陽当たり良好 ◇収納豊富な3LDK◇徒歩圏内に生活施設が充実◇阪神本線「青木」駅徒歩9分 ◇JR東海道本線「摂津本山」駅徒歩23分 【リフォーム内容】 ■全居室フローリング貼替(LL40) ■全居室クロス貼替(壁・天井) ■全居室木巾木交換 他
-
- 情報公開日
- 2025年10月18日
-
- 次回更新予定日
- 2025年11月01日
お問い合わせ先
大和ハウスリアルエステート株式会社
神戸三宮営業所
TEL0800-100-3344
営業時間(受付時間):9:00〜18:00
定休日:火曜日、水曜日、祝日
所在地
神戸市中央区三宮町1丁目2番1号(日住神戸三宮ビルディング6階)
JR神戸線「三ノ宮」駅、阪急神戸線「神戸三宮」駅、阪神本線「神戸三宮」駅より徒歩7分
担当エリア
神戸市(中央区・兵庫区・長田区・須磨区・垂水区・灘区)
免許番号
宅地建物取引業者免許番号 国土交通大臣(12)第2608号
所属団体
(公社)近畿地区不動産公正取引協議会加盟