- Livnessトップ
- 買いたい
- 東京都(八王子みなみ野駅)
- 八王子市七国六丁目
八王子市七国六丁目

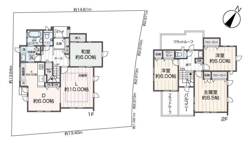
掲載の間取り図は設計図書を基に描き起こしたもので実際とは多少異なる場合があります。

掲載の間取り図は設計図書を基に描き起こしたもので実際とは多少異なる場合があります。

写真をクリックして拡大
◆魅力のみなみ野エリア!平成16年9月、株式会社ハウゼ施工の南欧風分譲住宅
◆敷地南側が公園に隣接していて日当たり良好です!
◆南八王子地区計画内でゆったりとした閑静な住宅地
◆小中学校が徒歩10分以内!
◆七国君田公園など憩いの場となる公園があります!
-
-
- 価格
- 5,460 万円(非課税)
-
- 物件種別
- 中古売戸建
-
-
-
- 所在地
- 東京都八王子市七国6丁目
-
- 交通
-
横浜線「八王子みなみ野」駅 徒歩16分
京王バス「みなみ野シティ中央」バス停まで約3 3 0 m(徒歩5 分)
-
-
-
- 間取り
- 4LDK
-
- 建物面積
- 118m²
-
- 築年月
- 2004年09月(築21年)
-
- 階数
- 2階
-
-
物件の特徴
地図
※ 地図内のマーカーの位置は実際の所在地とは多少異なる場合があります。
インフォメーション
≪周辺環境≫
スーパーアルプスみなみ野店・・・・・・約900m(徒歩12分)
ウェルシア薬局八王子七国店・・・・・・約850m(徒歩11分)
七国君田公園・・・・・・・・・・・・・約10m(徒歩1分)
八王子市立七国小学校・・・・・・・・・約720m(徒歩9分)
八王子市立七国中学校・・・・・・・・・約600m(徒歩8分)
京王バス「みなみ野シティ中央停」・・・約330m(徒歩5分)
物件概要
- 物件ID:
- 36908
-
- 物件名
- 八王子市七国六丁目
-
- 物件種別
- 中古売戸建
-
- 所在地
- 東京都八王子市七国6丁目
-
- 交通
-
横浜線「八王子みなみ野」駅 徒歩16分
京王バス「みなみ野シティ中央」バス停まで約3 3 0 m(徒歩5 分)
-
- 価格
- 5,460万円(非課税)
-
- 建物の建築年数
- 2004年09月(築21年)
-
- 構造
- 木造
-
- 階数
- 2階建
-
- 建物面積
- 118m²
-
- 間取り
- 4LDK
-
- 土地面積
- 181.09m²(公簿)
-
- 建ぺい率/容積率
- 50%/100%
-
- 私道負担
- なし
-
- 接道状況
- (公道)北東側約11m幅員
-
- 土地権利
- 所有権
-
- 用途地域
- 第一種低層住居専用地域
-
- 地目
- 宅地
-
- 都市計画
- 市街化区域
-
- 国土法届出
- -
-
- その他制限
- 第一種高度地区、準防火地域、地区計画(南八王子地区地区計画)
-
- 分譲時 売主
- -
-
- 施工会社
- 株式会社ハウゼ
-
- 駐車場
- 有
-
- 取引態様
- 専任
-
- 現況
- 居住中
-
- 引き渡し可能年月
- 相談
-
- その他費用
-
- 備考
- ■価格内訳/建物 19,106,360円、土地35,493,640円
■取引態様:建物媒介/土地売主
【定期借地権付建物のみの販売も承ります】
定期借地権の概要(一般定期借地権/土地貸主:大和ハウス工業株式会社)
■存続期間/2056年1月31日まで
■保証金/370万円 保証金は期間満了時に全額返還(無利息)
■地代(月額)/39,662円(3年ごとに改定)
■借地権の譲渡・転貸/可※ただし、地主の承諾要(承諾料不要)
■期間満了時に更地返還要。建物の買取り請求、契約更新および改築等による期間延長不可。借地権設定登記/可
※家具・家電・備品・車等は価格に含まれません。
-
- 情報公開日
- 2025年10月10日
-
- 次回更新予定日
- 2025年10月24日
お問い合わせ先
大和ハウス工業株式会社
東京西支店 第三住宅営業所
TEL0120-438-288
営業時間(受付時間):9:00〜18:00
定休日:火・水・祝日
所在地
八王子市南大沢1丁目8-2
京王相模原線「南大沢」駅より徒歩6分
担当エリア
八王子市・町田市、日野市、稲城市、多摩市
免許番号
宅地建物取引業者免許番号・国土交通大臣(16)第245号
所属団体
(一社)不動産協会会員
(公社)首都圏不動産公正取引協議会加盟