Ready Made Housing.

セキュレア松波EAST (分譲住宅)

セキュレア松波EAST (分譲住宅)
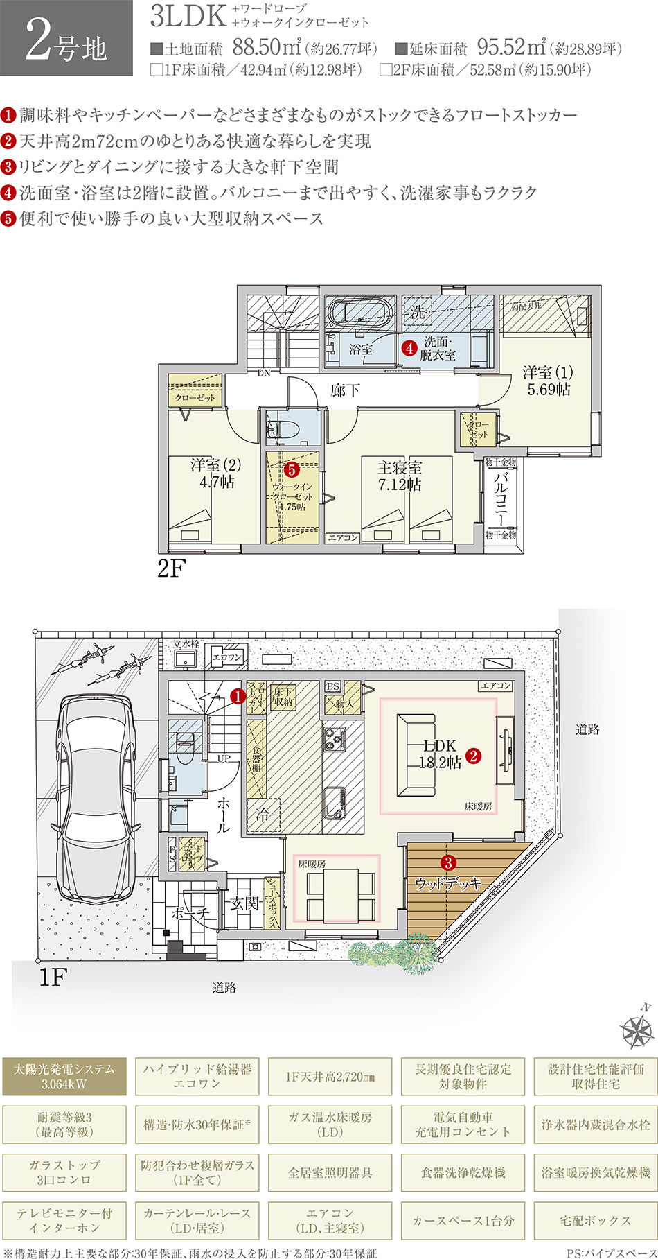
2号地(3LDK)

2号地
2号地
2号地
2号地
2号地
2号地
2号地
2号地
2号地
2号地
2号地
2号地
2号地
2号地
2号地
2号地

販売価格(税込)7,780万円

土地面積
88.5m2(約26.77坪)
建物面積
95.52m2(約28.89坪)

プラン

間取・外構植栽図は設計図書を基に描き起こしたもので実際とは多少異なる場合があります。
家具・家電・備品・車・自転車等は価格に含まれません。

地図(Google Map)

Google Mapを開く

カーナビ検索

千葉県千葉市中央区松波4丁目18-21付近

気になる物件はございましたか?

  • 分譲住宅
  • 土地
住まいカテゴリ
このページの先頭へ戻る

大和ハウス工業株式会社

Copyright DAIWA HOUSE INDUSTRY CO., LTD. All rights reserved.