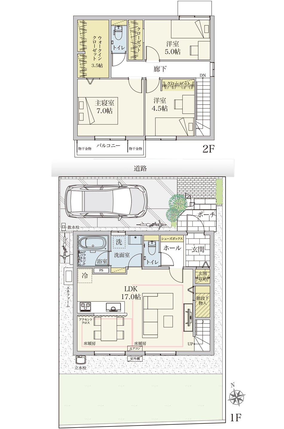
プラン
| 5号地 |
|---|
|
■敷地面積/120.58m2(約36.47坪)
■延床面積/97.72m2(約29.56坪)
※坪計算は1m2=0.3025坪として小数点以下3位を切り捨ててあります。 |
| ■販売価格(税込)/5,680万円 |

間取・外構植栽図は設計図書を基に描き起こしたもので実際とは多少異なる場合があります。
リビングテーブル・ソファ・ダイニングテーブルセット・TVボードは価格に含まれますが、その他の家具・家電・備品・車は価格に含まれません。
大和ハウス工業株式会社 DAIWA HOUSE INDUSTRY CO., LTD.
本店 〒530-8241 大阪市北区梅田3丁目3-5 大和ハウス大阪ビル TEL:0120-590-956
建設業許可番号・国土交通大臣許可(特-7)第5279号
宅地建物取引業者免許番号・国土交通大臣(16)第245号
(一社)大阪府宅地建物取引業協会会員
(公社)近畿地区不動産公正取引協議会加盟
