Ready Made Housing.

まちなかジーヴォ岸岡町(分譲住宅)

まちなかジーヴォ岸岡町(分譲住宅)
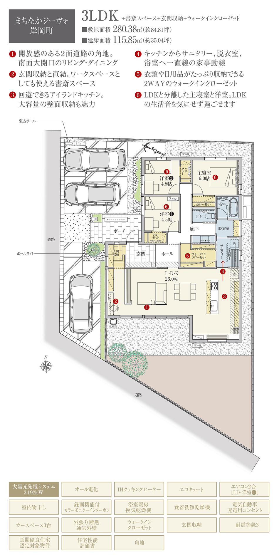
1号地(3LDK)

1号地
1号地
1号地
1号地
1号地
1号地
1号地
1号地
1号地
1号地
1号地
1号地
1号地
1号地
1号地
1号地
1号地
1号地
1号地

販売価格(税込)6,700万円

土地面積
280.38m2(約84.81坪)
建物面積
115.85m2(約35.04坪)

プラン

間取・外構植栽図は設計図書を基に描き起こしたもので実際とは多少異なる場合があります。
ソファ・サイドテーブル・ダイニングテーブルセット・ラグ・主寝室ベッド、洋室(1)のデスク・椅子・洋室ベッドは価格に含まれますが、その他の家具・家電・備品・車・自転車等は価格に含まれません。

地図(Google Map)

Google Mapを開く

カーナビ検索

三重県鈴鹿市岸岡町810番33付近

気になる物件はございましたか?

  • 分譲住宅
  • 土地
住まいカテゴリ
このページの先頭へ戻る

大和ハウス工業株式会社

Copyright DAIWA HOUSE INDUSTRY CO., LTD. All rights reserved.