Ready Made Housing.

セキュレア久居南III (分譲住宅)

セキュレア久居南III (分譲住宅)
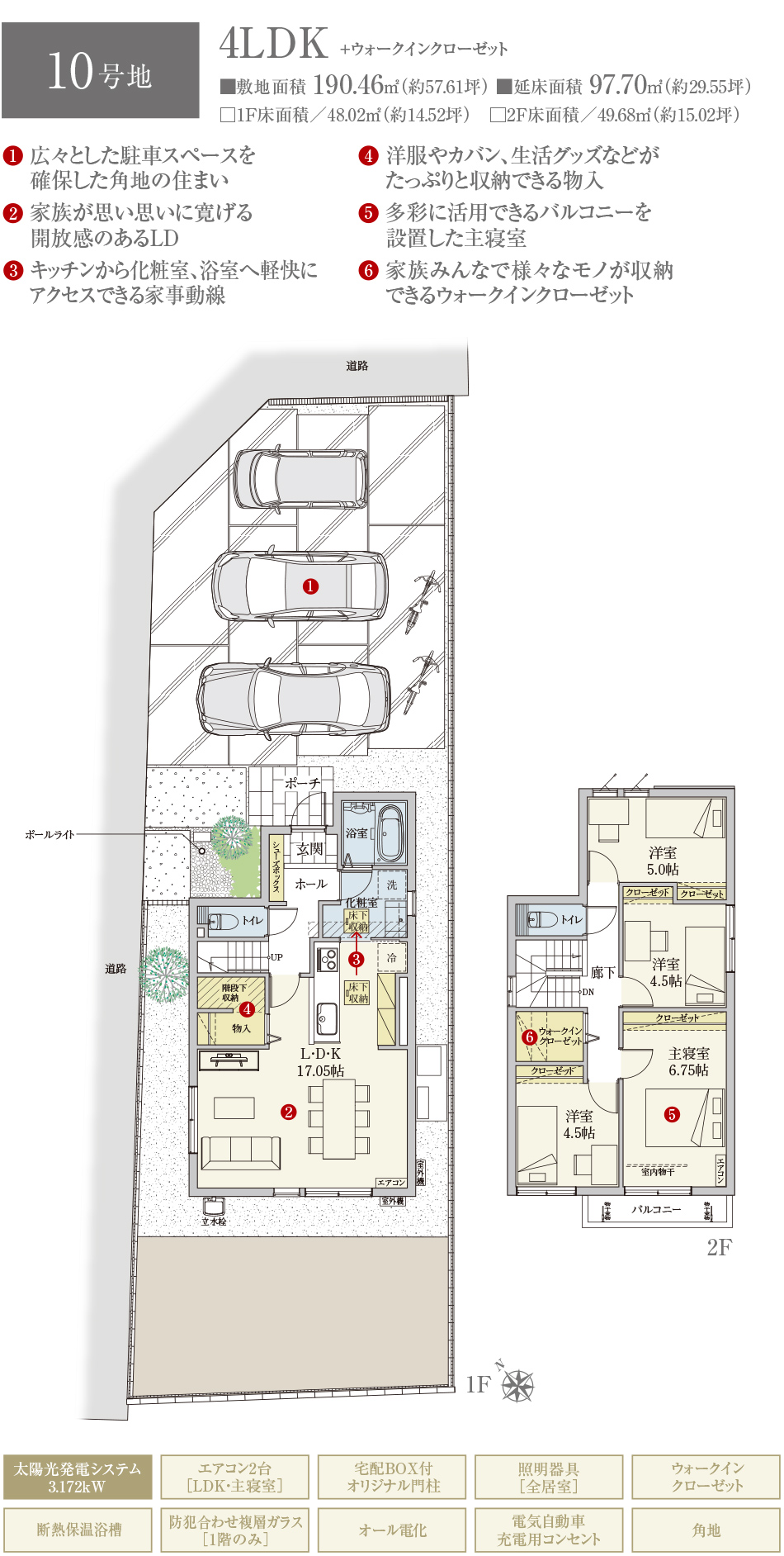
10号地(4LDK)

10号地
10号地
10号地
10号地
10号地
10号地
10号地
10号地
10号地
10号地
10号地
10号地
10号地
10号地
10号地

販売価格(税込)4,480万円

土地面積
190.46m2(約57.61坪)
建物面積
97.7m2(約29.55坪)

プラン

間取・外構植栽図は設計図書を基に描き起こしたもので実際とは多少異なる場合があります。
家具・家電・備品・車・自転車等は価格に含まれません。

地図(Google Map)

Google Mapを開く

カーナビ検索

三重県津市久居元町2279付近

気になる物件はございましたか?

  • 分譲住宅
  • 土地
住まいカテゴリ
このページの先頭へ戻る

大和ハウス工業株式会社

Copyright DAIWA HOUSE INDUSTRY CO., LTD. All rights reserved.