Ready Made Housing.

セキュレア三島西若町(分譲住宅)

セキュレア三島西若町(分譲住宅)
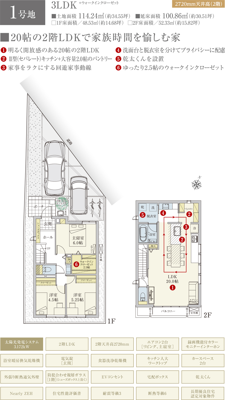
1号地(3LDK)

1号地
1号地
1号地
1号地
1号地
1号地
1号地
1号地
1号地
1号地
1号地
1号地
1号地

販売価格(税込)6,498万円

土地面積
114.24m2(約34.55坪)
建物面積
100.86m2(約30.51坪)

プラン

間取・外構植栽図は設計図書を基に描き起こしたもので実際とは多少異なる場合があります。
家具・家電・備品・車・自転車等は価格に含まれません。

地図(Google Map)

Google Mapを開く

カーナビ検索

静岡県三島市西若町2-17付近

気になる物件はございましたか?

  • 分譲住宅
  • 土地
住まいカテゴリ
このページの先頭へ戻る

大和ハウス工業株式会社

Copyright DAIWA HOUSE INDUSTRY CO., LTD. All rights reserved.