まちなかジーヴォ駿河区南八幡町II (分譲住宅)
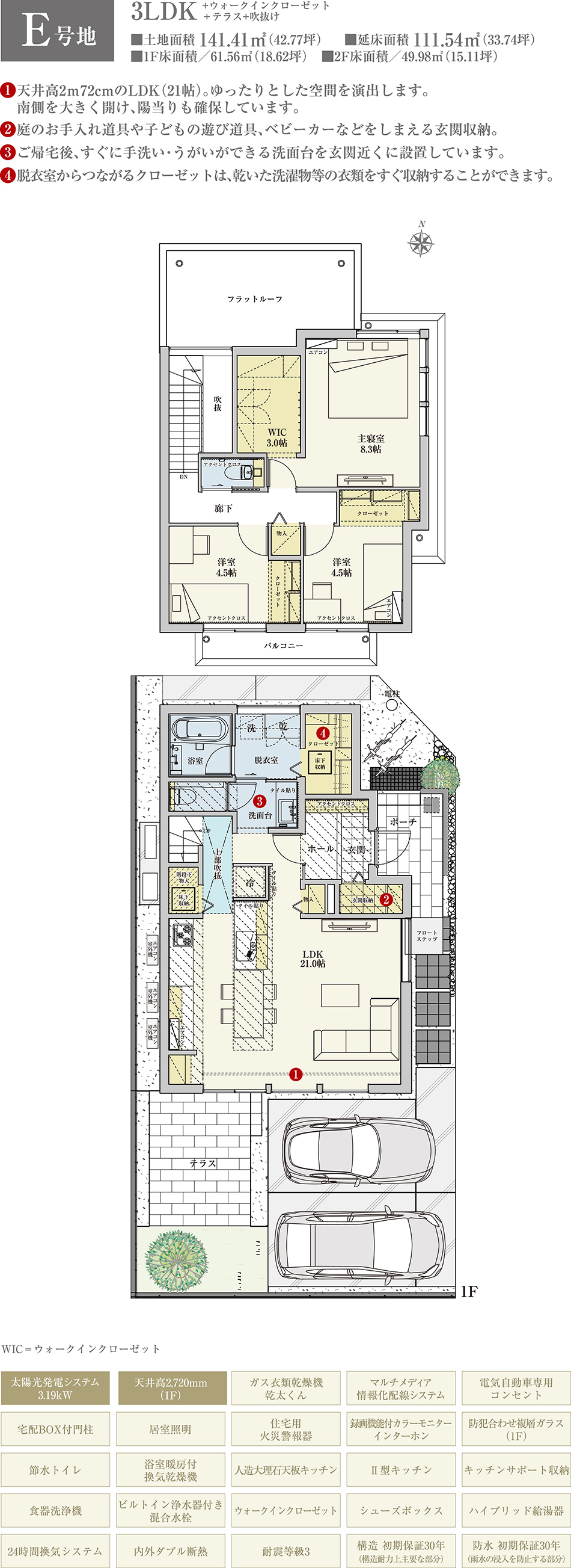
E号地(3LDK)
販売価格(税込)9,050万円
- 土地面積
- 141.41m2(約42.77坪)
- 建物面積
- 111.54m2(約33.74坪)
プラン

間取・外構植栽図は設計図書を基に描き起こしたもので実際とは多少異なる場合があります。
家具・家電・備品・車・自転車等は価格に含まれません。
販売価格(税込)9,050万円
間取・外構植栽図は設計図書を基に描き起こしたもので実際とは多少異なる場合があります。
家具・家電・備品・車・自転車等は価格に含まれません。