セキュレア稲毛台町 (分譲住宅)
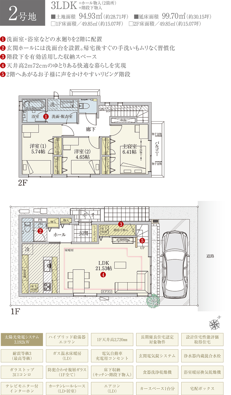
2号地(3LDK)
販売価格(税込)8,470万円
- 土地面積
- 94.93m2(約28.71坪)
- 建物面積
- 99.7m2(約30.15坪)
プラン

間取・外構植栽図は設計図書を基に描き起こしたもので実際とは多少異なる場合があります。
家具・家電・備品・車等は価格に含まれません。
販売価格(税込)8,470万円
間取・外構植栽図は設計図書を基に描き起こしたもので実際とは多少異なる場合があります。
家具・家電・備品・車等は価格に含まれません。