Ready Made Housing.

セキュレア鶴沢町 (分譲住宅)

セキュレア鶴沢町 (分譲住宅)
1号地(3LDK)

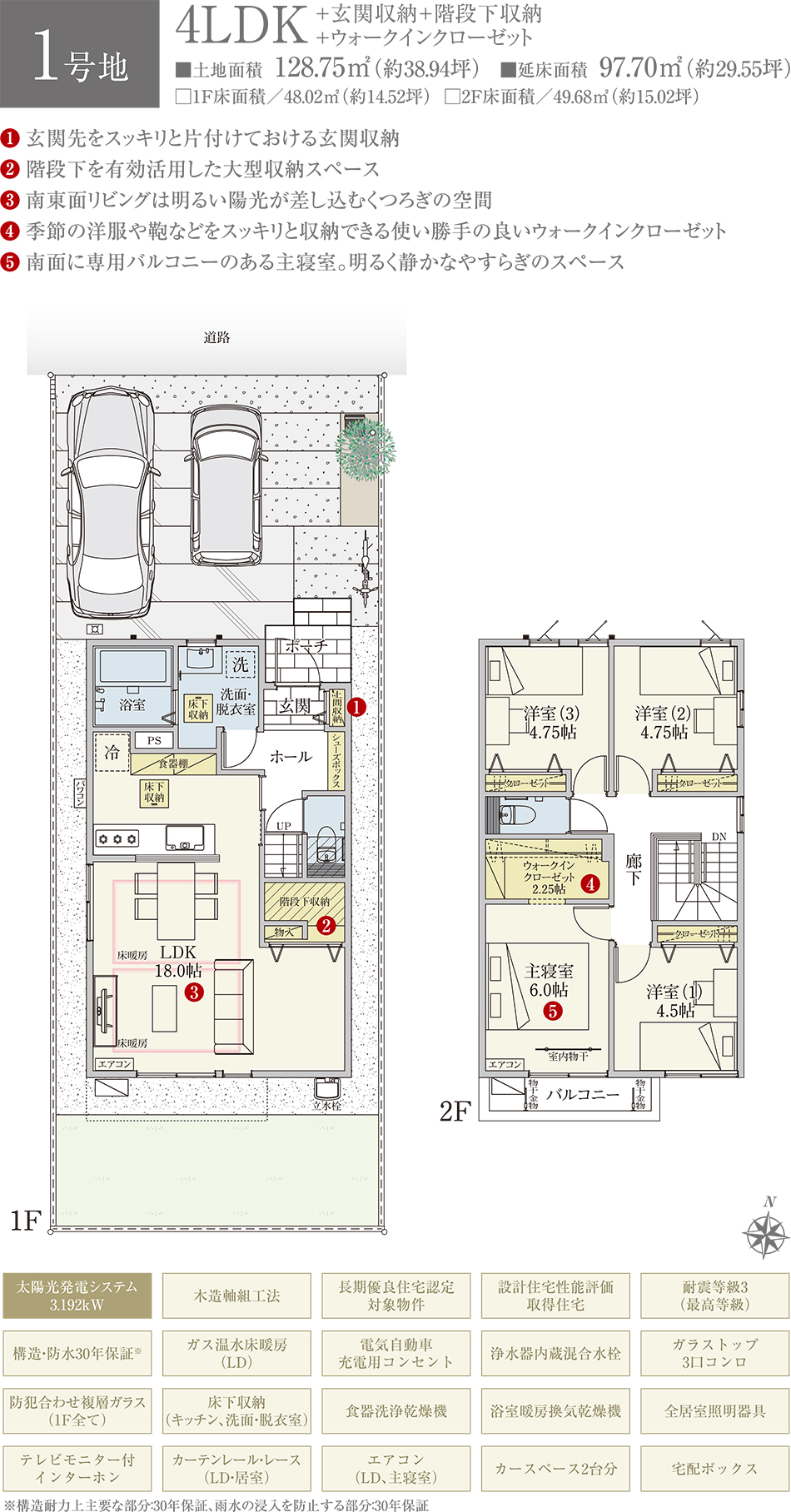
1号地
1号地
1号地
1号地
1号地
1号地
1号地
1号地
1号地
1号地
1号地
1号地
1号地
1号地
1号地
1号地
1号地
1号地
1号地
1号地
1号地

販売価格(税込)6,290万円

土地面積
128.75m2(約38.94坪)
建物面積
97.7m2(約29.55坪)

プラン

間取・外構植栽図は設計図書を基に描き起こしたもので実際とは多少異なる場合があります。
家具・家電・備品・車・自転車等は価格に含まれません。

地図(Google Map)

Google Mapを開く

カーナビ検索

千葉県千葉市中央区鶴沢町8-5付近

気になる物件はございましたか?

  • 分譲住宅
  • 土地
住まいカテゴリ
このページの先頭へ戻る

大和ハウス工業株式会社

Copyright DAIWA HOUSE INDUSTRY CO., LTD. All rights reserved.