Ready Made Housing.

セキュレア文京町二丁目 (建築条件付宅地分譲)

セキュレア文京町二丁目 (建築条件付宅地分譲)
1号地

1号地
1号地

土地価格2,080万円

土地面積
149.5m2(約45.22坪)

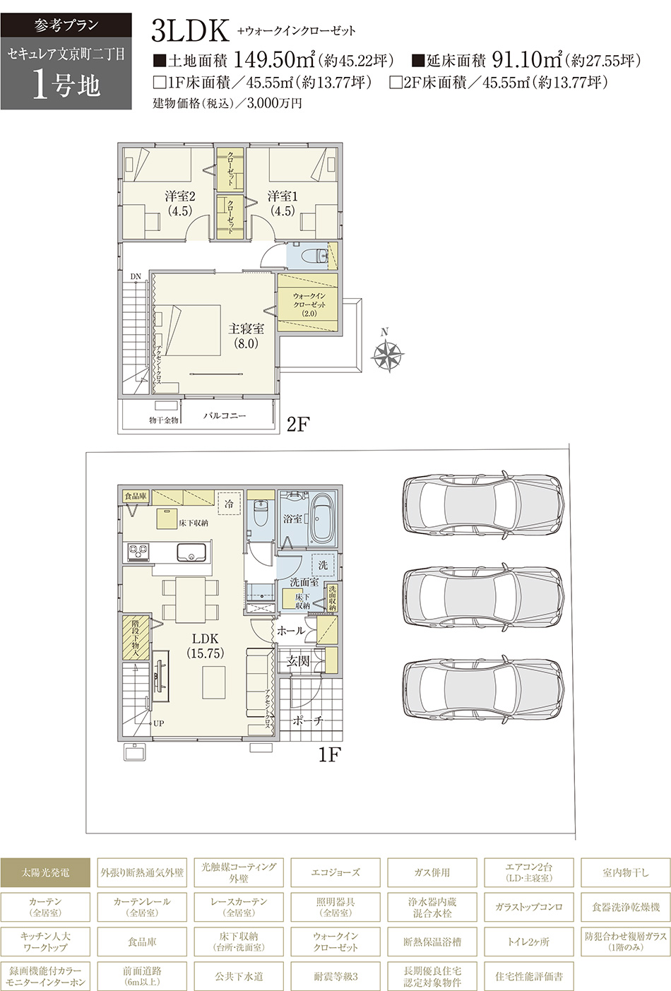
参考プラン ※建物プランは参考例であり、購入者はこのプランに関係なく、自由にプランニングできます。

参考プラン1

1号地
※掲載の間取・外構植栽図は設計図書を基に描き起こしたもので実際とは多少異なる場合があります。
※建物価格に屋外給排水工事費、電気工事費、ガス工事費等が含まれます。
※外構工事費・家具・家電・備品・車等は価格に含まれておりません

地図(Google Map)

Google Mapを開く

カーナビ検索

群馬県前橋市文京町二丁目13-1付近

気になる物件はございましたか?

  • 分譲住宅
  • 土地
住まいカテゴリ
このページの先頭へ戻る

大和ハウス工業株式会社

Copyright DAIWA HOUSE INDUSTRY CO., LTD. All rights reserved.