Ready Made Housing.

セキュレア横濱荏田南4丁目 (分譲住宅)

セキュレア横濱荏田南4丁目 (分譲住宅)
1号地(4LDK)

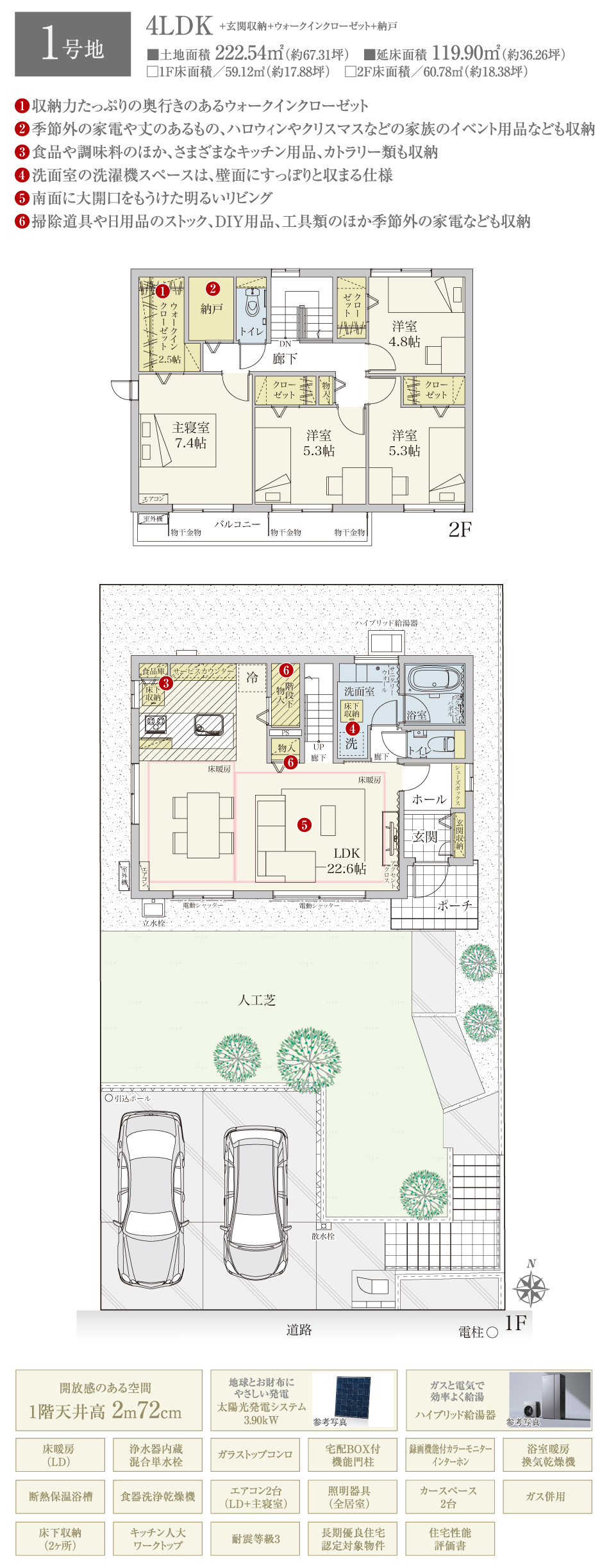
1号地
1号地
1号地
1号地
1号地
1号地
1号地
1号地
1号地
1号地
1号地
1号地
1号地
1号地
1号地

販売価格(税込)9,980万円

土地面積
222.54m2(約67.31坪)
建物面積
119.9m2(約36.26坪)

プラン

間取・外構植栽図は設計図書を基に描き起こしたもので実際とは多少異なる場合があります。
家具・家電・備品・車等は価格に含まれません。

地図(Google Map)

Google Mapを開く

カーナビ検索

神奈川県横浜市都筑区荏田南4丁目16-7付近

気になる物件はございましたか?

  • 分譲住宅
  • 土地
住まいカテゴリ
このページの先頭へ戻る

大和ハウス工業株式会社

Copyright DAIWA HOUSE INDUSTRY CO., LTD. All rights reserved.