DaiwaHouse

埼玉県川越市大字的場字豊後山2423番12の一部(霞ヶ関駅)の建売・分譲住宅

所在地:埼玉県川越市大字的場字豊後山2423番12の一部   交通:東武鉄道東上線「霞ヶ関」駅まで徒歩9分

資料請求 物件概要

プラン

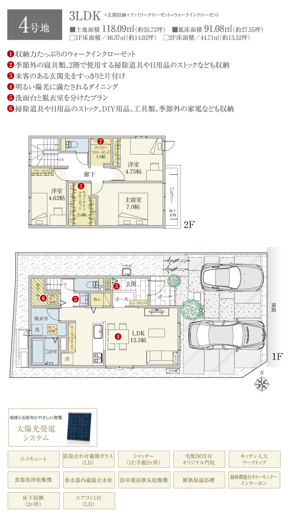
5号地
■敷地面積/130.68m2(約39.53坪) ■延床面積/92.74m2(約28.05坪)
※坪計算は1m2=0.3025坪として小数点以下3位を切り捨ててあります。
■販売価格(税込)/未定

完成予想図

間取・外構植栽図は設計図書を基に描き起こしたもので実際とは多少異なる場合があります。
家具・家電・備品・車・自転車等は価格に含まれません。

大和ハウス工業株式会社 DAIWA HOUSE INDUSTRY CO., LTD.
本社 〒530-8241 大阪市北区梅田3丁目3-5 大和ハウス大阪ビル TEL:0120-590-956

建設業許可番号・国土交通大臣許可(特-2)第5279号
宅地建物取引業者免許番号・国土交通大臣(16)第245号
(一社)大阪府宅地建物取引業協会会員
(一社)不動産協会会員
(公社)近畿地区不動産公正取引協議会加盟

住まいカテゴリ
このページの先頭へ戻る

大和ハウス工業株式会社

Copyright DAIWA HOUSE INDUSTRY CO., LTD. All rights reserved.