セキュレア入間市久保稲荷 (分譲住宅)
7号地(3LDK)
販売価格(税込)4,360万円
- 土地面積
- 123.67m2(約37.41坪)
- 建物面積
- 97.72m2(約29.56坪)
プラン

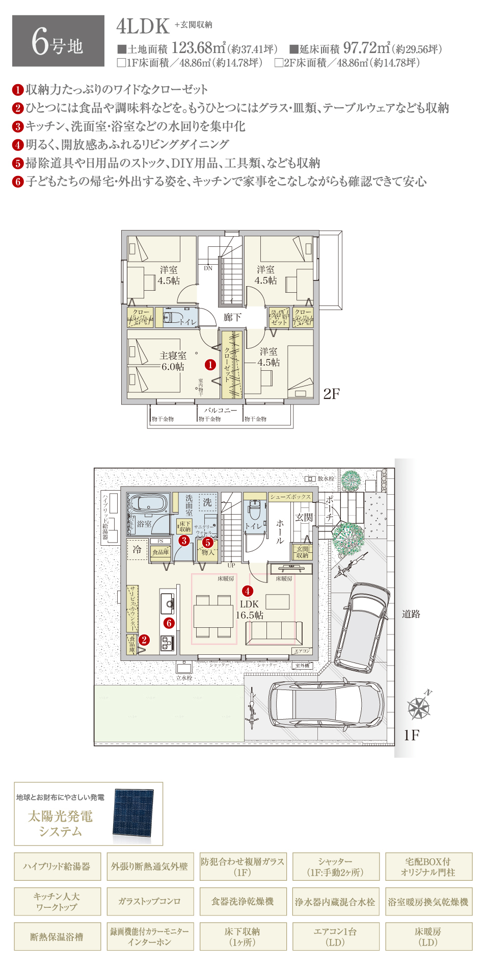
間取・外構植栽図は設計図書を基に描き起こしたもので実際とは多少異なる場合があります。
家具・家電・備品・車・自転車等は価格に含まれません。
販売価格(税込)4,360万円
間取・外構植栽図は設計図書を基に描き起こしたもので実際とは多少異なる場合があります。
家具・家電・備品・車・自転車等は価格に含まれません。