Ready Made Housing.

セキュレア新宿南榎町 (分譲住宅)

セキュレア新宿南榎町 (分譲住宅)
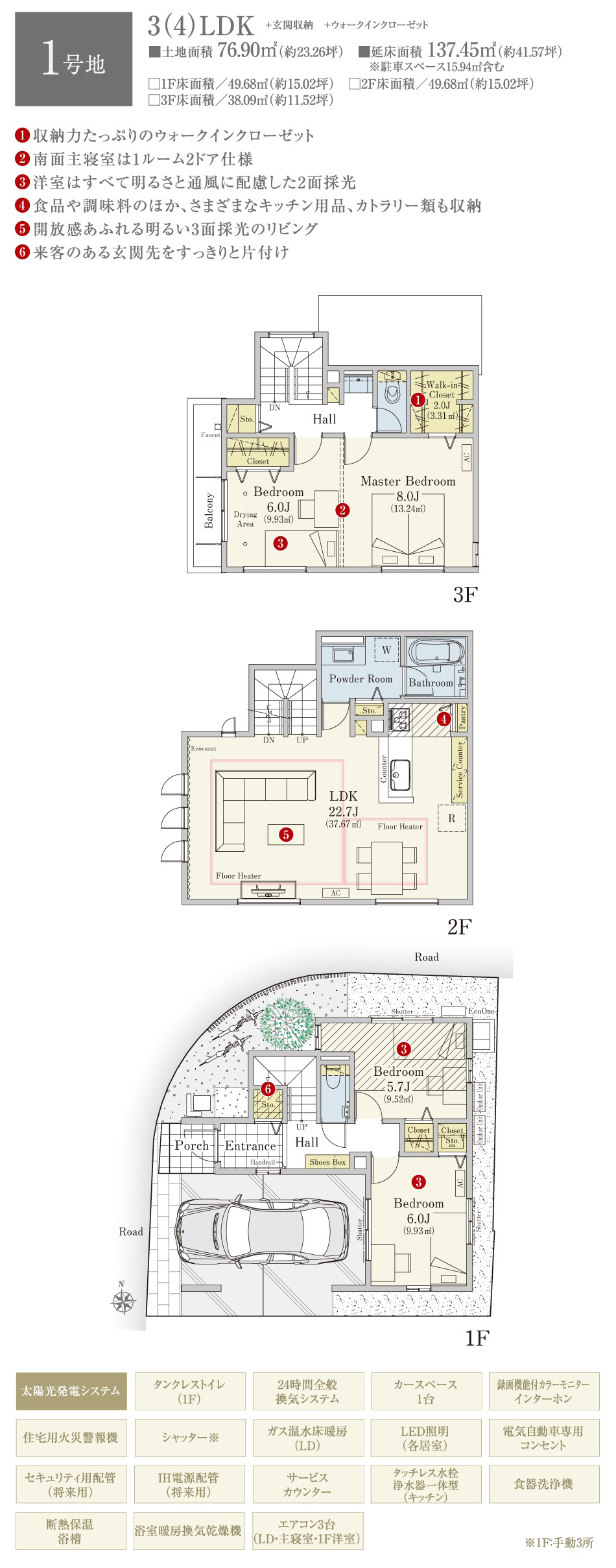
1号地(3LDK)

1号地
1号地
1号地
1号地
1号地

販売価格(税込)22,280万円

土地面積
76.9m2(約23.26坪)
建物面積
137.45m2(約41.57坪)

プラン

間取・外構植栽図は設計図書を基に描き起こしたもので実際とは多少異なる場合があります。
家具・家電・備品・車・自転車等は価格に含まれません。

地図(Google Map)

Google Mapを開く

カーナビ検索

東京都新宿区南榎町66-2

気になる物件はございましたか?

  • 分譲住宅
  • 土地
住まいカテゴリ
このページの先頭へ戻る

大和ハウス工業株式会社

Copyright DAIWA HOUSE INDUSTRY CO., LTD. All rights reserved.