Ready Made Housing.

セキュレア目黒駒場1丁目III 2期(分譲住宅)

セキュレア目黒駒場1丁目III 2期(分譲住宅)
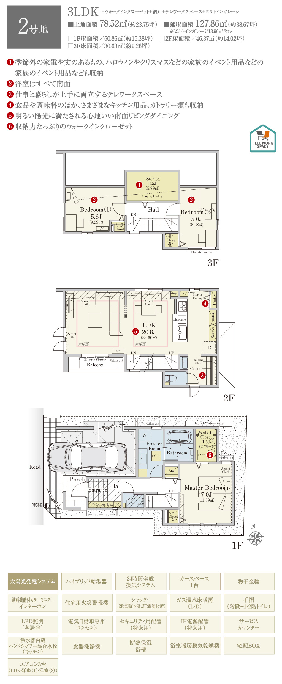
2号地(3LDK)

2号地
2号地
2号地
2号地
2号地
2号地
2号地

販売価格(税込)20,980万円

土地面積
78.52m2(約23.75坪)
建物面積
127.86m2(約38.67坪)

プラン

間取・外構植栽図は設計図書を基に描き起こしたもので実際とは多少異なる場合があります。
家具・家電・備品・車・自転車等は価格に含まれません。

地図(Google Map)

Google Mapを開く

カーナビ検索

東京都目黒区駒場一丁目40-12

気になる物件はございましたか?

  • 分譲住宅
  • 土地
住まいカテゴリ
このページの先頭へ戻る

大和ハウス工業株式会社

Copyright DAIWA HOUSE INDUSTRY CO., LTD. All rights reserved.