Ready Made Housing.

セキュレア阿倍野 I期(本店木造住宅事業部)(分譲住宅)

セキュレア阿倍野 I期(本店木造住宅事業部)(分譲住宅)
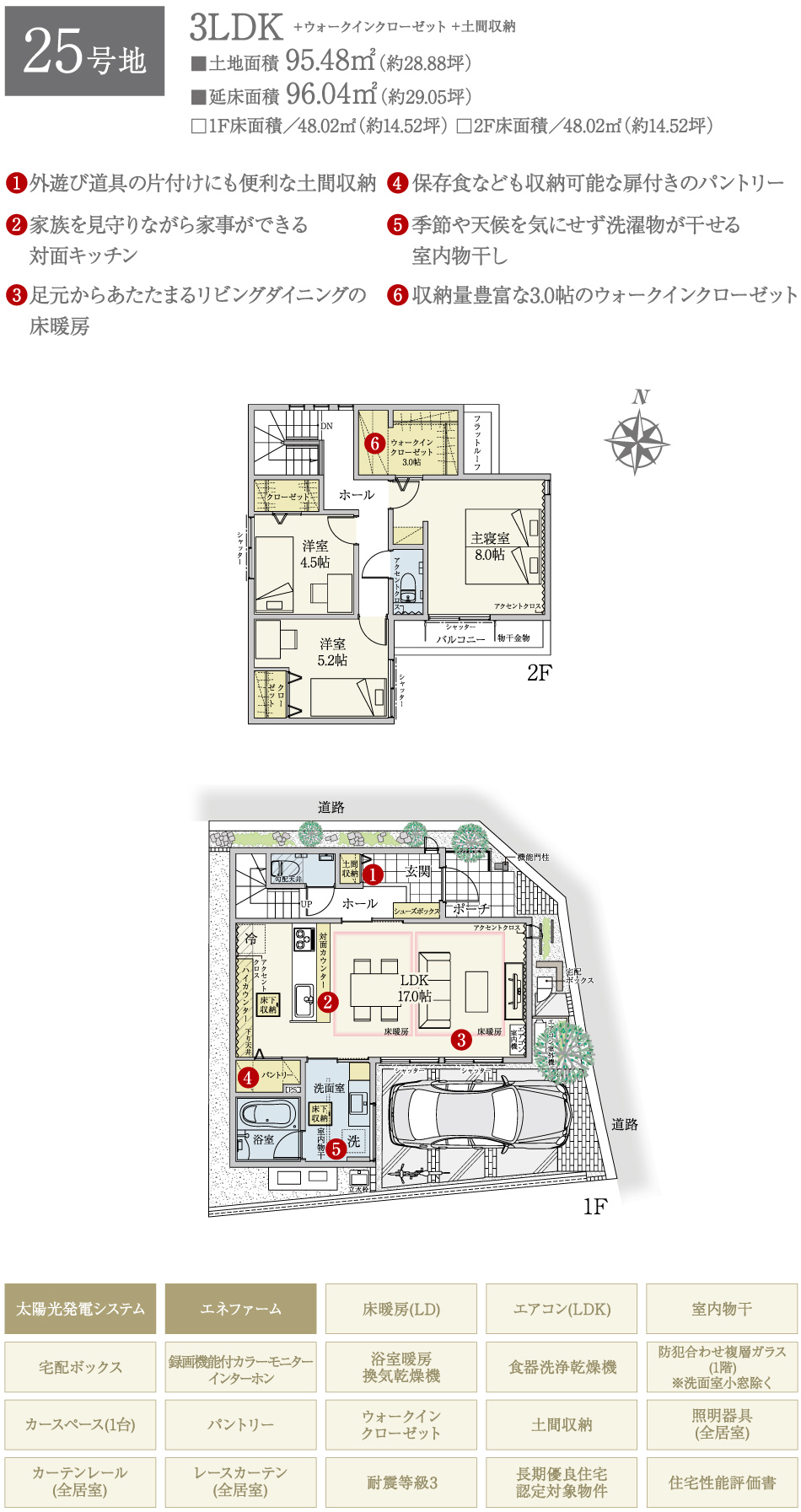
25号地(3LDK)

25号地
25号地
25号地
25号地
25号地
25号地
25号地
25号地
25号地
25号地
25号地
25号地

販売価格(税込)未定

土地面積
95.48m2(約28.88坪)
建物面積
96.04m2(約29.05坪)

プラン

間取・外構植栽図は設計図書を基に描き起こしたもので実際とは多少異なる場合があります。
家具・家電・備品・車・自転車等は価格に含まれません。

地図(Google Map)

Google Mapを開く

カーナビ検索

大阪市阿倍野区共立通2丁目7 付近

気になる物件はございましたか?

  • 分譲住宅
  • 土地
住まいカテゴリ
このページの先頭へ戻る

大和ハウス工業株式会社

Copyright DAIWA HOUSE INDUSTRY CO., LTD. All rights reserved.