Ready Made Housing.

セキュレア池田市神田 (本店木造住宅事業部)(分譲住宅)

セキュレア池田市神田 (本店木造住宅事業部)(分譲住宅)
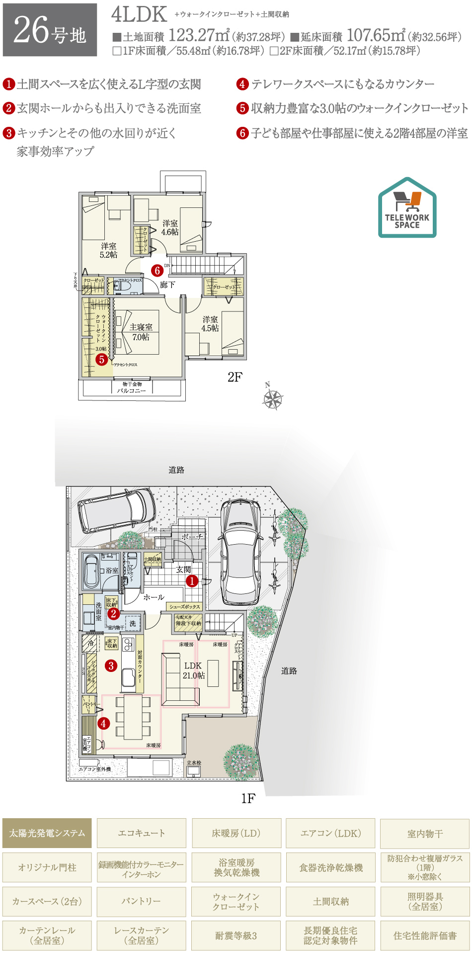
26号地(4LDK)

26号地
26号地
26号地
26号地
26号地
26号地
26号地
26号地
26号地
26号地
26号地
26号地
26号地
26号地

販売価格(税込)6,470万円

土地面積
123.27m2(約37.28坪)
建物面積
107.65m2(約32.56坪)

プラン

間取・外構植栽図は設計図書を基に描き起こしたもので実際とは多少異なる場合があります。
家具・家電・備品・車・自転車等は価格に含まれません。

地図(Google Map)

Google Mapを開く

カーナビ検索

池田市神田1丁目9-3

気になる物件はございましたか?

  • 分譲住宅
  • 土地
住まいカテゴリ
このページの先頭へ戻る

大和ハウス工業株式会社

Copyright DAIWA HOUSE INDUSTRY CO., LTD. All rights reserved.