Ready Made Housing.

セキュレア大和町III (分譲住宅)

セキュレア大和町III (分譲住宅)
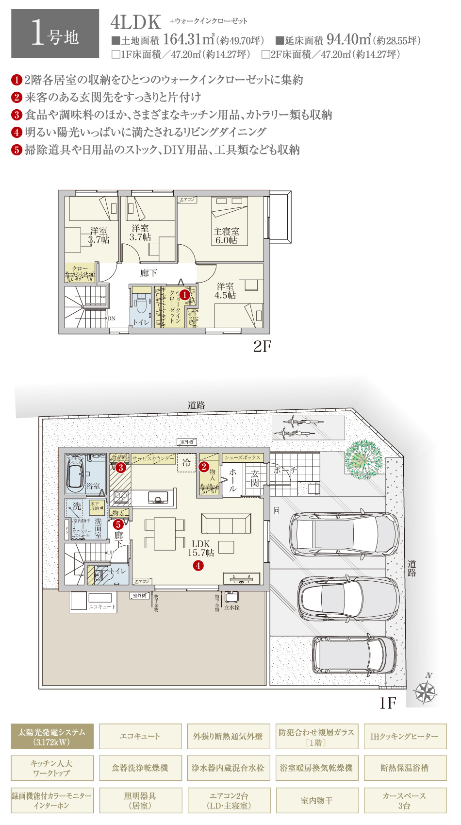
1号地(4LDK)

1号地
1号地
1号地
1号地
1号地
1号地
1号地
1号地
1号地
1号地
1号地
1号地
1号地
1号地
1号地
1号地
1号地
1号地
1号地

販売価格(税込)4,180万円

土地面積
164.31m2(約49.70坪)
建物面積
94.4m2(約28.55坪)

プラン

間取・外構植栽図は設計図書を基に描き起こしたもので実際とは多少異なる場合があります。
家具・家電・備品・車・自転車等は価格に含まれません。

地図(Google Map)

Google Mapを開く

カーナビ検索

MAPCODE:87 499 186*54 ※「マップコード」および「MAPCODE」は(株)デンソーの登録商標です。

気になる物件はございましたか?

  • 分譲住宅
  • 土地
住まいカテゴリ
このページの先頭へ戻る

大和ハウス工業株式会社

Copyright DAIWA HOUSE INDUSTRY CO., LTD. All rights reserved.