

Dedicated Site
エントリー者様専用サイト
公開間取り
image photo
PLAN
こだわりと自分だけのライフスタイルを叶えるため
細やかな配慮がなされたプランニングとしました。
夫婦の寝室を分けて独立性を高めたり、
2つの洋室とつながるウォークスルークローゼットなど、
幅広いライフスタイルに応える住まいを目指しました。

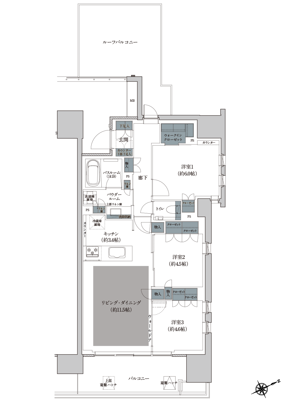
2〜10階平面図
PLAN LIST
- Etype
- 2LDK+2WIC+SC
- 専有面積62.36㎡
公開中
:通風
:採光
:アウトポール
WIC:ウォークインクローゼット SC:シューズクローゼット
MB:メーターボックス
※掲載の間取り図は、設計図書を基に描き起こしたもので、実際とは多少異なる場合があります。また、家具・家電・調度品等は販売価格に含まれておりません。
※掲載のウォークインクローゼット、ウォークインクローゼット扉裏収納はマンションギャラリーの設備コーナーを撮影したものです。(2025年1月撮影)
※共同住宅の住棟全体の性能を⽰すものであり、各住⼾の性能を⽰すものではありません。
※マイスタイルデザイン(もしくはプランセレクト)を利用して具体的な間取りが定められた場合、内容によっては省エネ性能に影響が生じ、表示に変更が生じる場合があります。
※掲載の各階平面図・間取り図は、設計図書を基に描き起こしたもので、実際とは多少異なる場合があります。
※掲載の外観完成予想図は設計図書を基に描きおこしたもので、実際とは多少異なる場合がございます。照明・カーテン・備品等は販売価格に含まれません。


