-
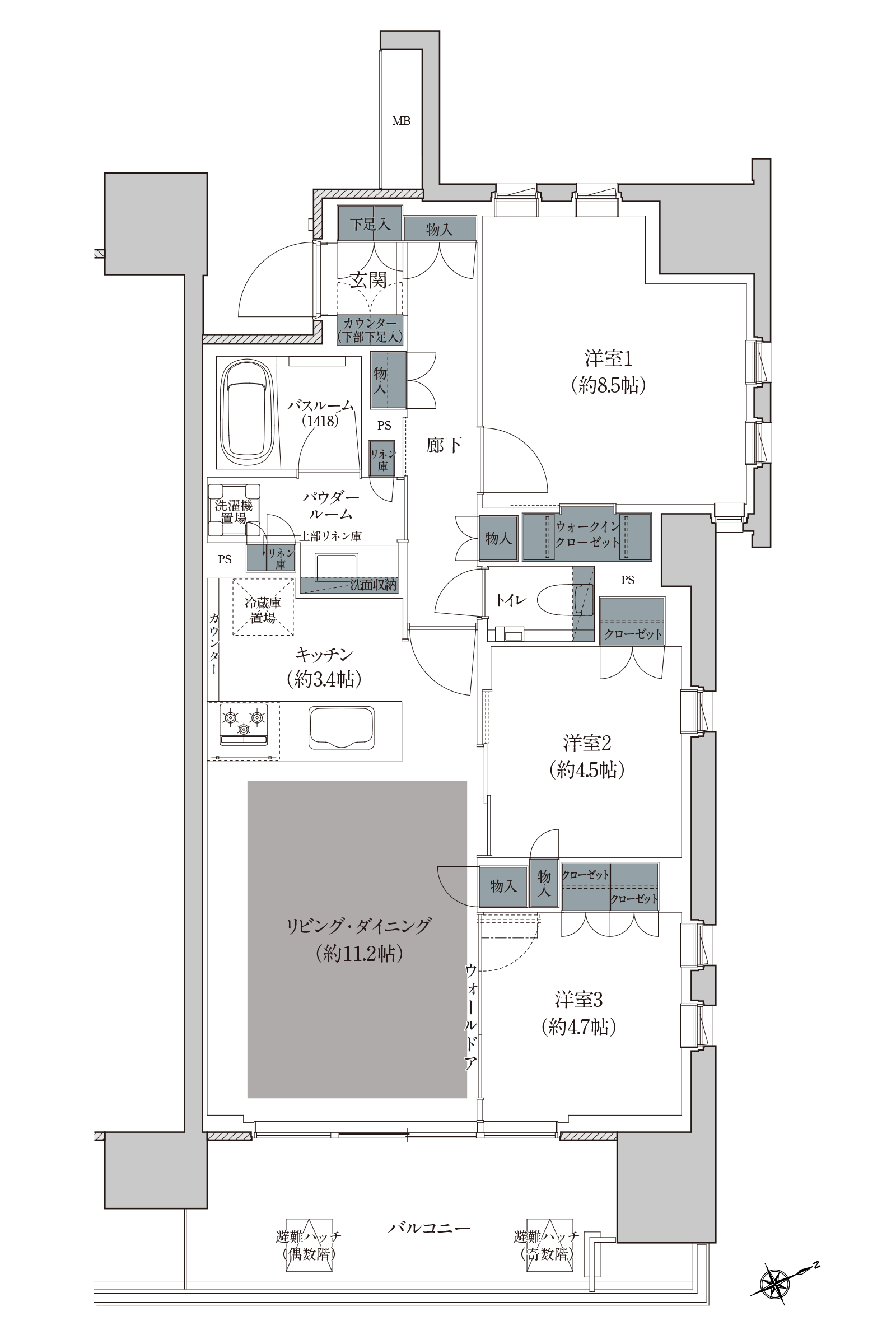
H3type
3LDK+WIC
専有面積/73.94㎡(約22.36坪)
バルコニー面積/11.84㎡(約3.58坪)
-
約8.5帖の広々とした洋室1をはじめ、全居室に窓を配した
明るく開放感ある3面採光角住戸。
ウォークインクローゼット、2つの下足入れ、
5つの物入やリネン庫といった収納スペースを確保。
〈モデルルーム公開中〉
来場予約フォームよりご予約いただけます。
INFORMATION
- 2026.3.19
- ルーフバルコニーライフのページを追加しました。
- 2025.10.3
- 物件エントリー者様専用サイトを更新いたしました。
- 2025.2.28
- 間取りページ、物件エントリー者様専用サイトに間取りを追加しました。
- 2025.2.14
- 物件エントリー者様専用サイトを更新いたしました。
- 2025.1.31
- デザインページに完成予想図を追加しました。
※掲載の各階平面図・間取り図は、設計図書を基に描き起こしたもので、実際とは多少異なる場合があります。



