PLAN

image photo
PLAN
2LDK
3LDK
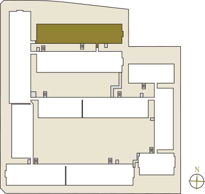
全タイプのLD側の柱や梁にアウトポール工法を採用
アウトポール工法とは
柱や梁を室外に設けるアウトポール工法を採用。室内側に柱や梁が出ないためすっきりとした空間となり、スペースを有効に使うことができます。
※メインバルコニーにアウトポール工法を採用しています。一部住戸にはポスト柱があります。詳しくは図面集をご参照ください。
※AM、AN、AO、AP、AQ、BH、BI、BJ、BK、CI、CJ、CK、CL、DJ、DK、DL、DM、DN、EE、EF,HL、HM、HN、HO、HP、IL、IMタイプにはポスト柱があります。

暮らしの快適性をさらに高める先進の設備
食器洗い乾燥機
スイッチひとつで洗浄から乾燥まで自動で行い、家事の負担を減らすと共に、節水にも貢献します。

※1

※2

※3
浄水機能付シャワー水栓
引き出して使える便利な浄水機能付シャワー水栓。
※定期的なカートリッジ交換が必要です。(有料)

※1※2

※3
浴室暖房乾燥機
洗濯物の乾燥機能や入浴前の暖房機能なども備え、快適なバスタイムを演出します。
※1の対象住戸はミストサウナ機能付です。

ディスポーザー
排水口部で生ゴミを粉砕して排水と一緒に流し、敷地内に設けた処理装置で生ゴミを分解し下水道に流す自動給水式ディスポーザーを設置しています。
※粉砕できないものもございます。詳しくは係員にお尋ねください。

ソフトクローズ機能付きスライド収納
収納物全体を上から見渡せる便利なスライド式収納。重量物を入れた時もスムーズな引き心地、またソフトクローズ機能付きでゆっくり静かに閉まります。

鏡裏収納
化粧品や身だしなみ用品などパウダールームで使うこまごまとした物を鏡の裏に収納できます。
※1の対象住戸は五面鏡、※2※3の対象住戸は三面鏡です。
※2※3の写真には一部インテリアオプションが含まれています。

※1

※2※3
ユニットバス
入浴しやすいように
低く抑えた浴槽のまたぎ高
またぎやすくするために、洗い場からの浴槽の高さを50cm以下と低めに抑えました。

安心して入浴ができる
浴室手摺り(スライドバー兼用)
安全性に配慮して、浴槽に浸かる、立ち上がるなどの動作を助ける手摺を設置しました。


浴室のドアは
外からの取り外しが可能
浴室のドアは外からの取り外しが可能なので、浴室内での万が一の事故の際でも対応することができます。
※1.対象住戸はAN・AO・AP・AQ・BH・BI・BJ・BK・CI・CJ・CK・CL・DJ・DK・DL・DM・DN・EE・EF・HL・HM・HN・HO・HPタイプになります。
※2.対象住戸はAA・AM・BG・CA・DI・EA・EB・EC・ED・HA・IL・IMタイプになります。
※3.対象住戸はAB・AC・AD・AE・AF・AG・AH・AI・AJ・AK・AL・BA・BB・BC・BD・BE・BF・CB・CC・CD・CE・CF・CG・CH・DA・DB・DC・DD・DE・DF・DG・DH・FA・FB・FC・FD・FE・FF・FG・FH・GA・GB・GC・GD・GE・GF・HB・HC・HD・HE・HEG・HF・HFG・HG・HGG・HH・HHG・HI・HIG・HJ・HJG・HK・HKG・IA・IB・IC・ID・IE・IF・IG・IH・II・IJ・IK・JA・JB・JBG・JC・JCG・JD・JDG・JE・JEG・JF・JFG・KA・KAG・KB・KBG・KC・KCG・KD・KDG・KE・KEG・KF・KFG・KG・KGG・KH・KHG・KI・KIGタイプになります。
※写真はモデルルーム(HAタイプ(浄水機能付シャワー水栓以外の※1の写真はDNタイプ))を2024年11月に撮影したものです。家具・備品等は価格に含まれません。

























