お近くのダイワハウス

分譲マンション

物件エントリー者様専用サイト | 千葉県船橋市の分譲マンション
プレミストタワー船橋

PREMIST プレミストタワー船橋

Upper Suite

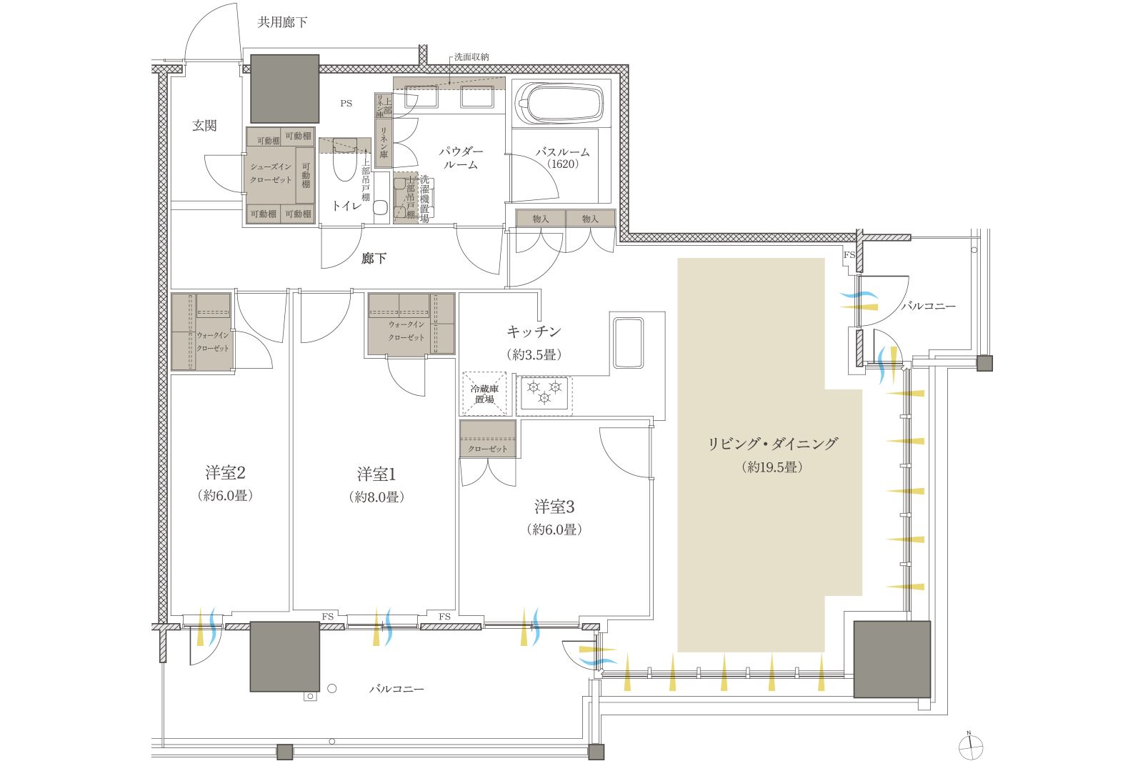
95B type|3LDK+2WIC+SIC|専有面積 98.35平方メートル|

専有面積 98.35 m²(約29.75坪)

  • バルコニー面積/18.06m²(約5.46坪)
95B type 間取り図
  • WIC=ウォークインクローゼット
  • SIC=シューズインクローゼット
  • PS=パイプスペース
  • FS=設備配管スペース
  • 凡例:
  • 通風
  • 採光
  • 収納
  • 床暖房範囲

※掲載の間取りは設計図書を基に描き起こしたもので、実際とは多少異なる場合があります。
※住戸により仕様・形状が多少異なる場合がございます。

ページ上部へ

Copyright DAIWA HOUSE INDUSTRY CO., LTD. All rights reserved.