Ready Made Housing.

セキュレア川越霞ヶ関 (分譲住宅)

セキュレア川越霞ヶ関 (分譲住宅)
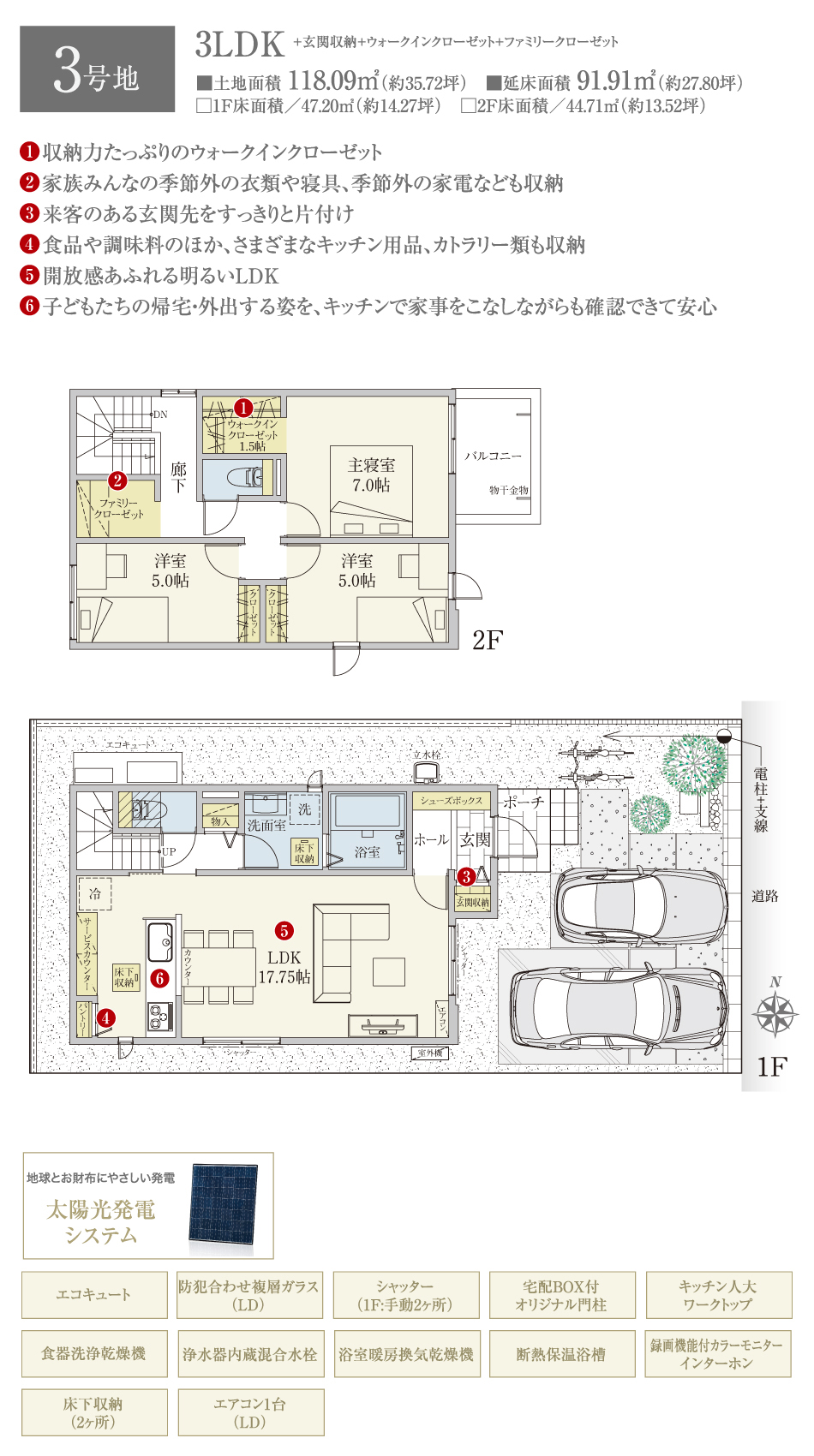
4号地(3LDK)

4号地
4号地
4号地
4号地
4号地
4号地
4号地
4号地
4号地
4号地
4号地
4号地
4号地
4号地
4号地
4号地
4号地
4号地
4号地
4号地

販売価格(税込)4,980万円

土地面積
118.09m2(約35.72坪)
建物面積
91.08m2(約27.55坪)

プラン

間取・外構植栽図は設計図書を基に描き起こしたもので実際とは多少異なる場合があります。
家具・家電・備品・車・自転車等は価格に含まれません。

地図(Google Map)

Google Mapを開く

カーナビ検索

埼玉県川越市的場2423-17付近

気になる物件はございましたか?

  • 分譲住宅
  • 土地
住まいカテゴリ
このページの先頭へ戻る

大和ハウス工業株式会社

Copyright DAIWA HOUSE INDUSTRY CO., LTD. All rights reserved.