DESIGN
外観完成予想CG
PRIVATE SILENCE
四季の潤いに包まれた、
林間都市住宅。
小田急によってゆとりと安らぎに満ちた
緑に囲まれながら、 ゆっくりと刻を重ねる「穏やかな日常」が ここにあります。
周囲の街並みと調和する、
アースカラーの外観。
緑豊かで、住宅街が広がる落ち着いた街並みに
ガラスのバルコニー手摺がモダンさを奏でる、 品格と質感溢れるファサードを デザインしました。

外観完成予想CG
MATERIAL マテリアル

趣きあるマテリアル
外観には2つの異なる表情をもつ装飾仕上げ塗材を基調に、大理石の繊細な筋模様を表現した大判磁器質タイルを使用。内部には、安らぎを与える自然木の壁面アートと、エレガントさを与える大判磁器質タイルを使用しています。
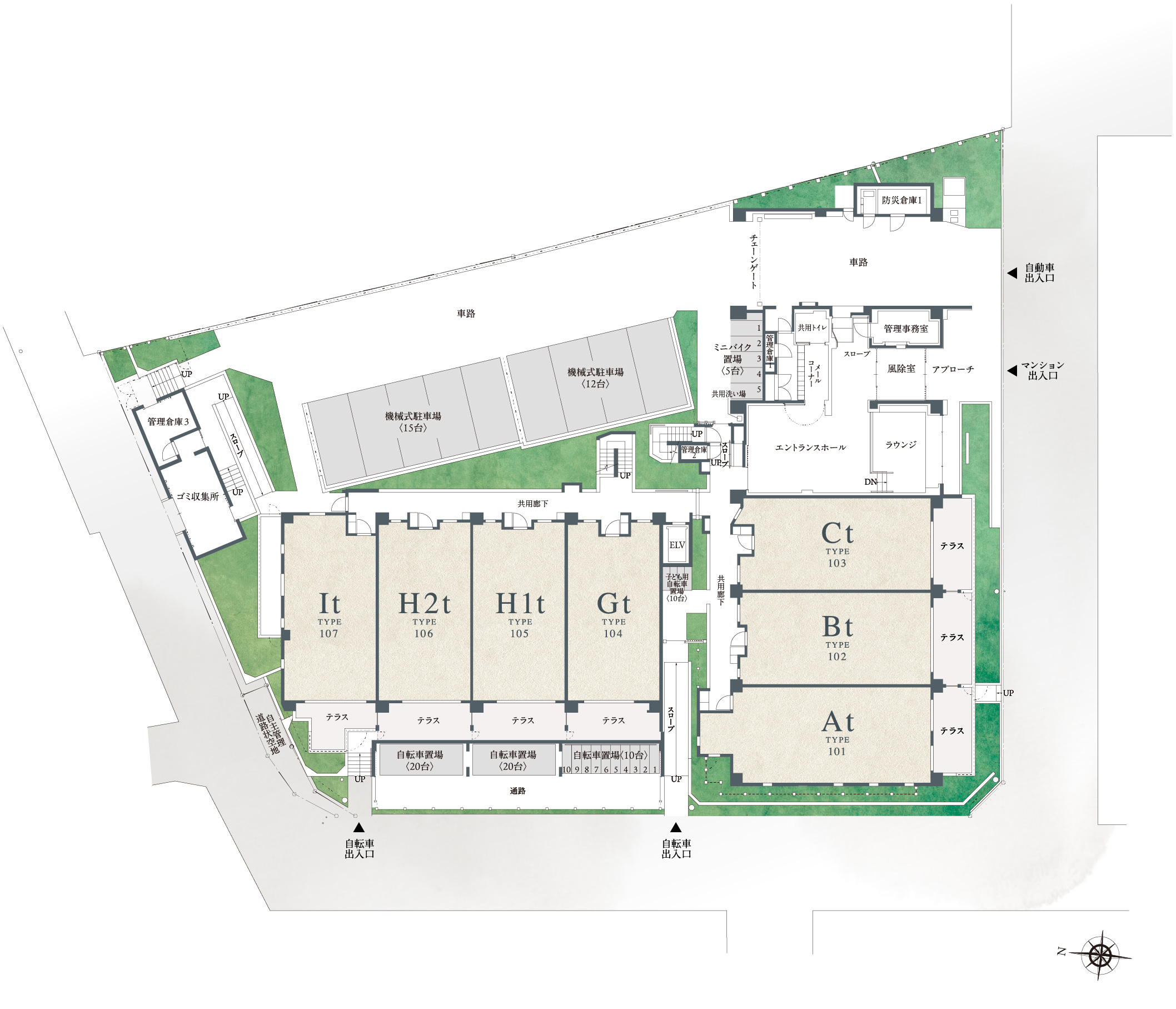
3方接道の独立性を活かした
敷地計画3方接道の独立性の高い敷地条件を活かして、
日当たりよく、風がよく通る、 心地よい住まいを、ここに実現させました。

敷地配置図

image photo
駐車場
敷地内には、全27台分の駐車場をご用意(総戸数に対し設置率約60%)。全区画高さ1,750mm以上のミドルルーフ車対応が特徴です。また、9台分は高さ2,100mm以上のハイルーフ車対応とし、多様な車種にフィットする設計としています。

image photo
歩車分離設計/チェーンゲート
敷地内は、歩行者と車の動線を分けた歩車分離設計を採用。住まう方の安全性に配慮した、安心感のあるランドプランとしています。また、車の出入口にはチェーンゲートを設け、関係者以外の車両の進入を抑制。日々の安心に配慮します。

image
24時間ゴミ出し
曜日や時間を気にせず、いつでもゴミ出しが可能な24時間対応のゴミ置場を敷地内に設置。忙しい日々の中でも住まいを清潔に保てます。
四季の移ろいを感じ、
街の新たな景色となる植栽計画。
「常に花が咲く林の中での華やかな生活」を
春はエントランスのヤマザクラ、 ツツジ類やホンシャクナゲなど、 初夏から夏は アジサイやキンシバイにハギ、サルスベリ、 秋はキンモクセイの香りやマホニアの花、落葉樹の紅葉、 冬はジンチョウゲやアセビと、 四季の移ろいと主に変化し、 街の新たな風景となる植栽を計画しました。








- ※掲載の完成予想CGは設計図書を基に描きおこしたもので、形状・色等は実際とは多少異なる場合がございます。外観形状の細部、照明・排水設備・室外機・雨樋・換気口・各種桝等の設備機器は表現しておりません。植栽は、ご入居時の状況を想定して描かれたものではありません。また、竣工時には完成予想CG程度には成長しておらず、形状、位置等は実際とは多少異なる場合があります。葉や花の色合い・枝ぶりや樹形は想定であり実際とは多少異なる場合がございます。家具・家電・調度品等は販売価格に含まれません。