PLAN
間取り
image photo
便利かつ柔軟な生活スタイルを提案。
TTYPE
PTYPE
STYPE
ROOV walk
実際の間取りを
360°VRで体感していただけます。
※N=納戸、SIC=シューズインクローゼット
こちらよりROOVにご登録いただくと、
公式サイト未公開の間取りをご覧いただけます。
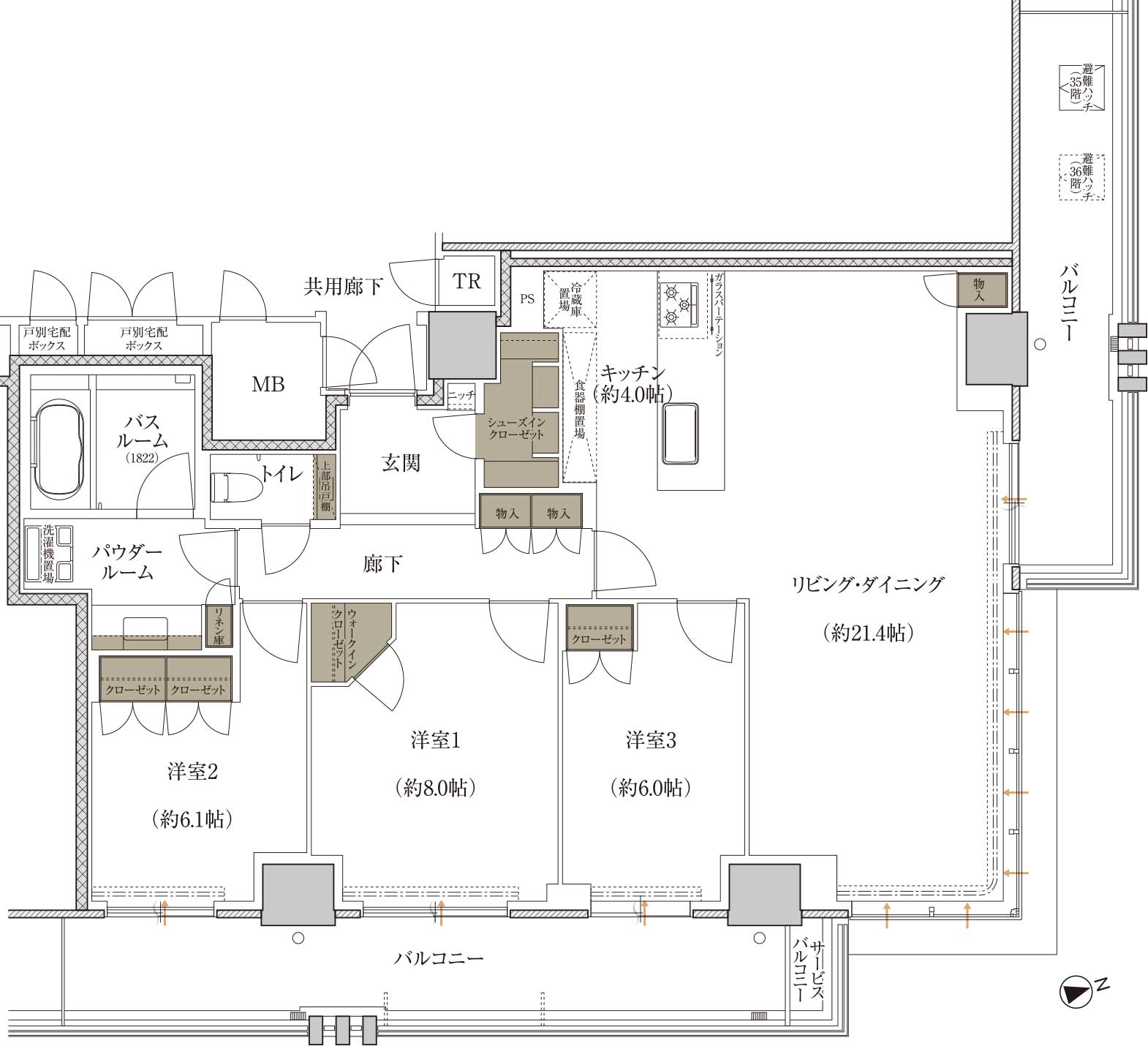
T-DTYPE
3LDK
+SIC+2WIC
住居専有面積 107.17㎡(約32.41坪)
※戸別宅配ボックス面積1.56㎡を含む
■バルコニー面積/18.47㎡(約5.58坪)
■サービスバルコニー面積/1.07㎡(約0.32坪)
コーナーウインドウで眺望と暮らせるリビング・ダイニング。
南面に2つの洋室を配した、開放的な3LDK南西角住戸。
多忙な朝でも2名が快適に使えるツインボウルの洗面室。

T-FTYPE
3LDK+N+P
+2SIC+3WIC
住居専有面積 126.57㎡(約38.28坪)
※戸別宅配ボックス面積1.60㎡を含む
■バルコニー面積/23.76㎡(約7.18坪)
■サービスバルコニー面積/1.07㎡(約0.32坪)
眺望のもとに集う、約31.7帖のリビング・ダイニング・キッチン。
南面に3つの洋室を配した、開放的な3LDK東南角住戸。
2名が同時に使える、ツインボウルの洗面室。

T-FTYPE PLAN
SELECT
2LDK+2N+P
+2SIC+2WIC
住居専有面積 126.57㎡(約38.28坪)
※戸別宅配ボックス面積1.60㎡を含む
■バルコニー面積/23.76㎡(約7.18坪)
■サービスバルコニー面積/1.07㎡(約0.32坪)
眺望のもとに集う、約33.3帖のリビング・ダイニング・キッチン。
南面に2つの洋室を配した、開放的な2LDK東南角住戸。
2名が同時に使える、ツインボウルの洗面室。

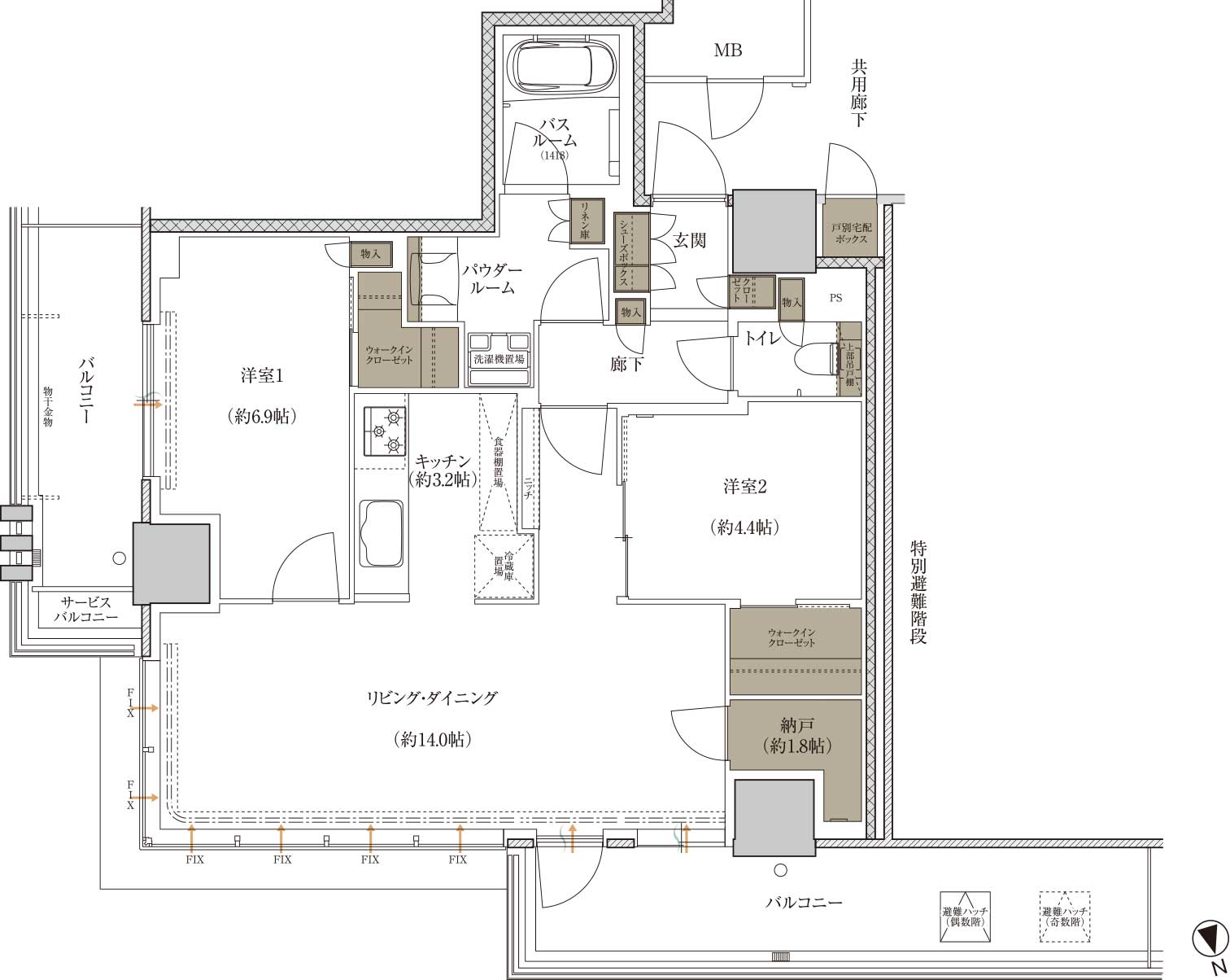
P-BTYPE
3LDK+SIC
住居専有面積 84.05㎡(約25.42坪)
※戸別宅配ボックス面積1.04㎡を含む
■バルコニー面積/16.53㎡(約5.00坪)
■サービスバルコニー面積/1.07㎡(約0.32坪)
ワイドなコーナーウインドウを設けたリビング・ダイニング。
3つの洋室がバルコニーに面する、開放的な3LDK北西角住戸。
ゴルフバッグなども収納できるシューズインクローゼット。

P-FTYPE
3LDK
+SIC+WIC
住居専有面積 72.32㎡(約21.87坪)
※戸別宅配ボックス面積1.66㎡を含む
■バルコニー面積/12.27㎡(約3.71坪)
ワイドスパンを活かし、南向きの
バルコニー面に2つの洋室を配置。
シューズインクローゼットや
ウォークインクローゼットなど収納も豊富。
洋室3は間仕切りを開放すれば
リビング・ダイニングと一体空間に。

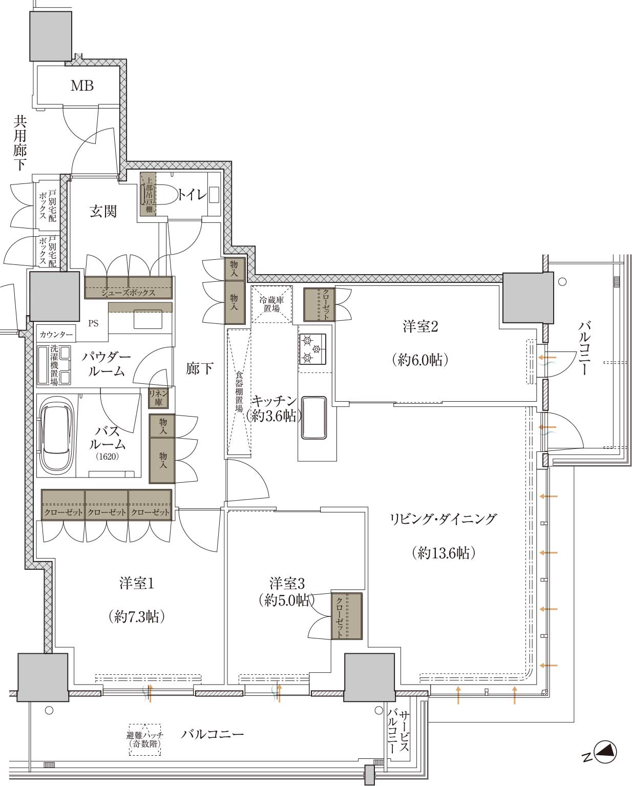
S-FTYPE
2LDK
+SIC
住居専有面積 56.15㎡(約16.98坪)
※戸別宅配ボックス面積1.38㎡を含む
■バルコニー面積/13.78㎡(約4.16坪)
ワイドスパンを活かし、バルコニー面に
2つの洋室とリビング・ダイニングを配置。
シューズインクローゼットやリネン庫など
適所にゆとりの収納を設置。
廊下の面積を抑え、
居室の広さを最大限に確保した効率的なプラン。

S-LTYPE PLAN
SELECT
2LDK+WIC
住居専有面積 67.05㎡(約20.28坪)
※戸別宅配ボックス面積1.52㎡を含む
■バルコニー面積/10.93㎡(約3.30坪)

S-PTYPE PLAN
SELECT
2LDK+N+2WIC
住居専有面積 70.39㎡(約21.29坪)
※戸別宅配ボックス面積1.02㎡を含む
■バルコニー面積/18.35㎡(約5.55坪)
■サービスバルコニー面積/1.07㎡(約0.32坪)











