Plan Variety きっと見つかる。それぞれに合ったプラン。

Room Plan
駅前で叶える、
開放感と陽光に満たされる暮らし。
地上14階建て、全邸南東向き、
2LDK~4LDKの多彩な広さで、
未来を迎える住まいへ。
【10階】
Plan List 代表プラン
“しまえる”が、
暮らしのゆとりを変える。
全戸トランクルーム付きの
豊富なプランバリエーション。
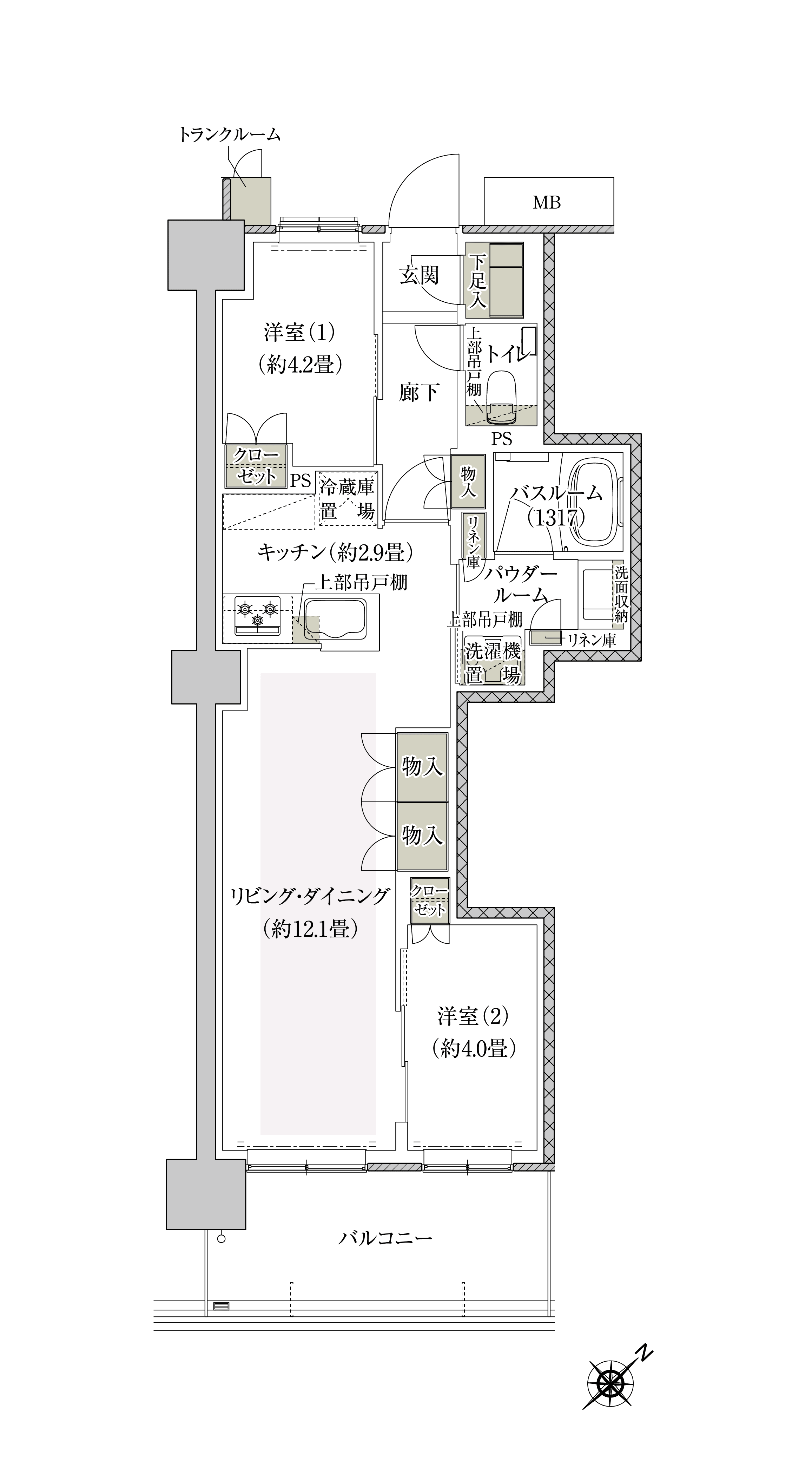
AN type
2 LDK
専有面積
55 .93m2
(約16.91坪)
- トランクルーム面積0.60m2含む
バルコニー面積/7.41m2
- 洋室には引戸を採用
- 角住戸
- トランクルーム
- 奥行約2mバルコニー

MORE
BK type
3 LDK+WIC+SIC
専有面積
76 .15m2
(約23.03坪)
- トランクルーム面積0.51m2含む
バルコニー面積/11.32m2(2階)
12.30m2(3〜14階)
※間取り図は3〜14階
- ウォークインクローゼット
- シューズインクローゼット
- トランクルーム
- スライドウォールドア
- WIC:ウォークインクローゼット
- SIC:シューズインクローゼット

MORE
BR type
4 LDK+WIC+N (納戸)
専有面積
87 .87m2
(約26.58坪)
- トランクルーム面積0.64m2含む
バルコニー面積/11.11m2
- ウォークインクローゼット
- 廊下に物入3箇所
- 納戸
- トランクルーム
- 南東角住戸
- WIC:ウォークインクローゼット
- N:納戸

MORE