- Livnessトップ
- 買いたい
- 愛知県(南荒子駅)
- 中川区馬手町二丁目
中川区馬手町二丁目
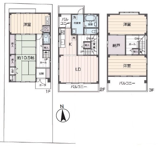
掲載の間取り図は設計図書を基に描き起こしたもので実際とは多少異なる場合があります。
掲載の間取り図は設計図書を基に描き起こしたもので実際とは多少異なる場合があります。
写真をクリックして拡大
【周辺環境】
名古屋市立昭和橋小学校・・・・・・・・・徒歩10分
名古屋市立昭和橋中学校・・・・・・・・・徒歩26分
グラチェタウン太平通・・・・・・・・・・徒歩5分
セブンイレブン名古屋葉池町店・・・・・・徒歩3分
-
-
- 価格
- 2,980 万円(非課税)
-
- 物件種別
- 中古売戸建
-
-
-
- 所在地
- 愛知県名古屋市中川区馬手町2丁目
-
- 交通
- 名古屋臨海高速鉄道「南荒子」駅 徒歩10分
-
-
-
- 間取り
- 4LDK+S
-
- 建物面積
- 139.41m²
-
- 築年月
- 2001年07月(築24年)
-
- 階数
- 3階
-
-
リフォーム・リノベーション内容
◆2018年7月
・外装・屋根塗装塗り替えリフォーム工事済
◆2021年2月
・キッチンリフォーム工事済
◆2023年2月
・洗面化粧台リフォーム済
◆2023年10月
・1、2階のトイレリフォーム済
地図
※ 地図内のマーカーの位置は実際の所在地とは多少異なる場合があります。
物件概要
- 物件ID:
- 37852
-
- 物件名
- 中川区馬手町二丁目
-
- 物件種別
- 中古売戸建
-
- 所在地
- 愛知県名古屋市中川区馬手町2丁目
-
- 交通
- 名古屋臨海高速鉄道「南荒子」駅 徒歩10分
-
- 価格
- 2,980万円(非課税)
-
- 建物の建築年数
- 2001年07月(築24年)
-
- 構造
- 鉄骨造
-
- 階数
- 3階建
-
- 建物面積
- 139.41m²
-
- 間取り
- 4LDK+S(納戸)
-
- 土地面積
- 116.82m²
-
- 建ぺい率/容積率
- 60%/200%
-
- 私道負担
- なし
-
- 接道状況
- (公道)南側・幅員約5.0m
-
- 土地権利
- 所有権
-
- 用途地域
- 準工業地域
-
- 地目
- 宅地
-
- 都市計画
- 市街化区域
-
- 国土法届出
- -
-
- その他制限
- 防火指定:準防火地域
その他法令上の制限:宅地造成及び特定盛土等規制法
-
- 分譲時 売主
- -
-
- 施工会社
- -
-
- 駐車場
- 有
-
- 取引態様
- 仲介
-
- 現況
- 居住中
-
- 引き渡し可能年月
- 2026年7月予定
-
- その他費用
-
- 備考
- ◆駐車場2台並列可能(カーポート有)
※S=納戸
※間取図は実際とは多少異なる場合があります。
※図面と現況が異なる場合は現況を優先します。
※写真内の家具・家電・備品・車等は価格に含まれません。
-
- 情報公開日
- 2026年05月28日
-
- 次回更新予定日
- 2026年06月11日
お問い合わせ先
大和ハウス工業株式会社
中部支社 名古屋住宅事業部
TEL0120-00-1536
営業時間(受付時間):9:00〜18:00
定休日:火・水・祝日
所在地
名古屋市中村区平池町4丁目60番地9
名古屋臨海高速鉄道あおなみ線「ささしまライブ」駅より徒歩1分
担当エリア
名古屋市全域と近隣全域
免許番号
宅地建物取引業者免許番号・国土交通大臣(16)第245号
所属団体
(公社)愛知県宅地建物取引業協会会員
東海不動産公正取引協議会加盟




