- Livnessトップ
- 買いたい
- 新潟県(越後石山駅)
- 新潟市東区粟山2丁目
新潟市東区粟山2丁目
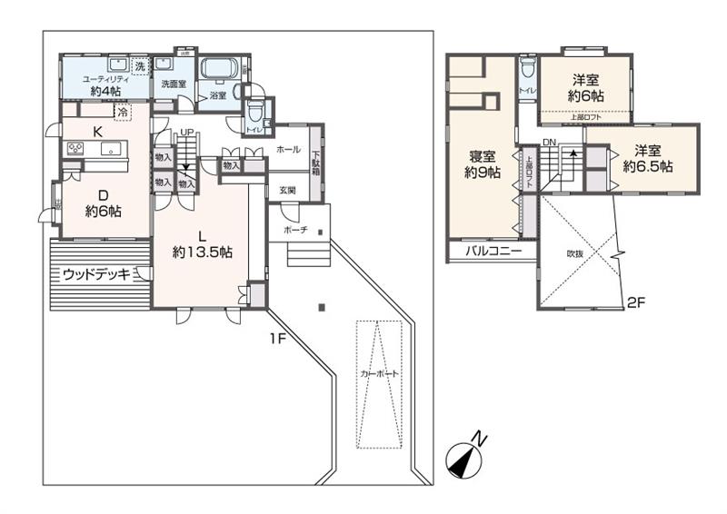
掲載の間取り図は設計図書を基に描き起こしたもので実際とは多少異なる場合があります。
掲載の間取り図は設計図書を基に描き起こしたもので実際とは多少異なる場合があります。
写真をクリックして拡大
【周辺環境】
新潟市立南中野山小学校・・・・・・徒歩11分
新潟市立中野山小学校・・・・・・・徒歩15分
新潟市立石山中学校・・・・・・・・徒歩17分
みつばち第二こども園・・・・・・・徒歩15分
大沼公園・・・・・・・・・・・・・徒歩8分
キューピット粟山店・・・・・・・・徒歩7分
ウオエイ石山店・・・・・・・・・・徒歩3分
小田医院内科循環器内科・・・・・・徒歩11分
-
-
- 価格
- 1,980 万円(非課税)
-
- 物件種別
- 中古売戸建
-
-
-
- 所在地
- 新潟県新潟市東区粟山2丁目
-
- 交通
- 信越本線「越後石山」駅 徒歩8分
-
-
-
- 間取り
- 3LDK
-
- 建物面積
- 133.14m²
-
- 築年月
- 1989年12月(築36年)
-
- 階数
- 2階
-
-
物件の特徴
地図
※ 地図内のマーカーの位置は実際の所在地とは多少異なる場合があります。
物件概要
- 物件ID:
- 37577
-
- 物件名
- 新潟市東区粟山2丁目
-
- 物件種別
- 中古売戸建
-
- 所在地
- 新潟県新潟市東区粟山2丁目
-
- 交通
- 信越本線「越後石山」駅 徒歩8分
-
- 価格
- 1,980万円(非課税)
-
- 建物の建築年数
- 1989年12月(築36年)
-
- 構造
- 木造
-
- 階数
- 2階建
-
- 建物面積
- 133.14m²
-
- 間取り
- 3LDK
-
- 土地面積
- 325.24m²
-
- 建ぺい率/容積率
- 50%/100%
-
- 私道負担
- 46.00㎡の負担
-
- 接道状況
- (私道)南東側・幅員約6.0m
-
- 土地権利
- 所有権
-
- 用途地域
- 第一種低層住居専用地域
-
- 地目
- 宅地
-
- 都市計画
- 市街化区域
-
- 国土法届出
- -
-
- その他制限
- 法22条区域・絶対高さ制限10m・北側斜線制限・道路斜線制限・日影規制
-
- 分譲時 売主
- -
-
- 施工会社
- -
-
- 駐車場
- 有
-
- 取引態様
- 仲介
-
- 現況
- 空家
-
- 引き渡し可能年月
- 即時
-
- その他費用
-
- 備考
- 取引態様:媒介
※写真内の家具・カーテン・備品等は価格に含まれません。
※間取り図は実際とは多少異なる場合があります。
※図面と現況が異なる場合は現況を優先となります。
-
- 情報公開日
- 2026年05月14日
-
- 次回更新予定日
- 2026年05月28日
お問い合わせ先
大和ハウス工業株式会社
新潟支店 住宅営業所
TEL0120-86-2731
営業時間(受付時間):9:00〜18:00
定休日:水・日・祝日
所在地
新潟市中央区堀之内南1丁目31番14号
JR「新潟」駅よりタクシーで約10分
JR「新潟」駅南口より新潟交通3番・4番線乗車約6分、「堀之内」バス停下車徒歩6分
JR「新潟」駅より徒歩20分
担当エリア
新潟市全域と近隣地域
免許番号
宅地建物取引業者免許番号・国土交通大臣(16)第245号
所属団体
(公社)新潟県宅地建物取引業協会会員
(公社)首都圏不動産公正取引協議会加盟




