- Livnessトップ
- 買いたい
- 静岡県(源道寺駅)
- 富士宮市田中町
富士宮市田中町
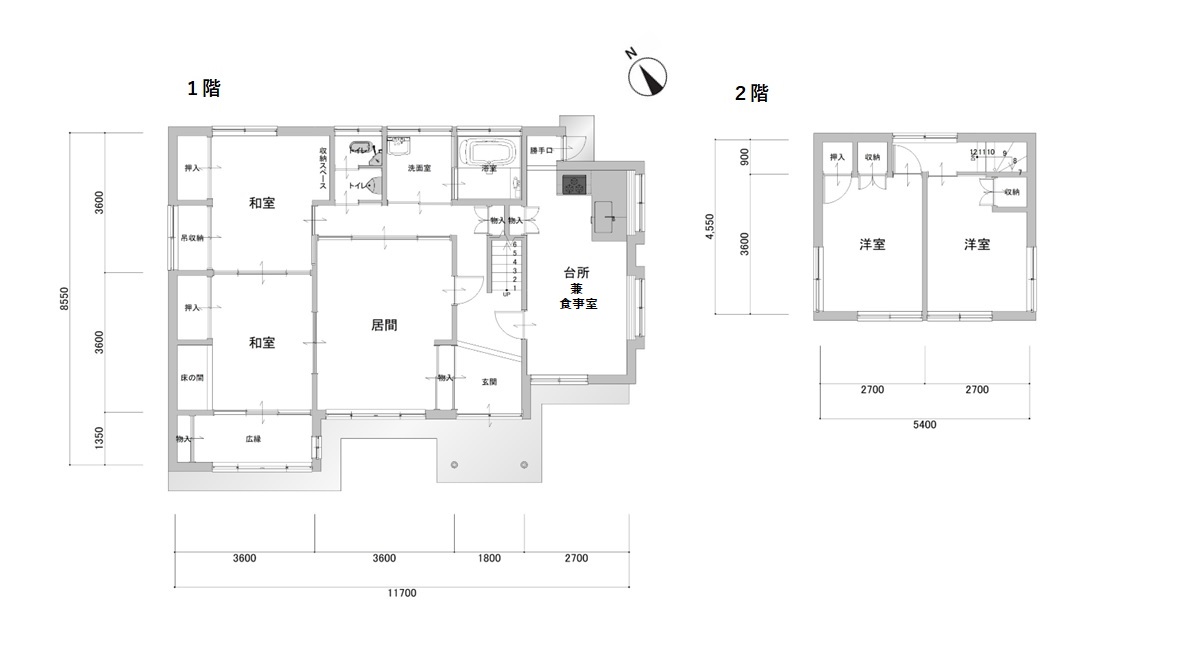
掲載の間取り図は設計図書を基に描き起こしたもので実際とは多少異なる場合があります。
掲載の間取り図は設計図書を基に描き起こしたもので実際とは多少異なる場合があります。
写真をクリックして拡大
【周辺環境】
ファミリーマート富士宮田中町店・・・・・徒歩4分
ウエルシア富士宮田中町店・・・・・・・・徒歩6分
イオンモール富士宮店・・・・・・・・・・徒歩14分
静岡県富士宮市立東小学校・・・・・・・・徒歩18分
富士宮市立第一中学校・・・・・・・・・・徒歩22分
-
-
- 価格
- 1,600 万円(非課税)
-
- 物件種別
- 中古売戸建
-
-
-
- 所在地
- 静岡県富士宮市田中町
-
- 交通
- 身延線「源道寺」駅 徒歩10分
-
-
-
- 間取り
- 4LDK
-
- 建物面積
- 109.35m²
-
- 築年月
- 1974年11月(築51年)
-
- 階数
- 2階
-
-
物件の特徴
地図
※ 地図内のマーカーの位置は実際の所在地とは多少異なる場合があります。
物件概要
- 物件ID:
- 38069
-
- 物件名
- 富士宮市田中町
-
- 物件種別
- 中古売戸建
-
- 所在地
- 静岡県富士宮市田中町
-
- 交通
- 身延線「源道寺」駅 徒歩10分
-
- 価格
- 1,600万円(非課税)
-
- 建物の建築年数
- 1974年11月(築51年)
-
- 構造
- 木造
-
- 階数
- 2階建
-
- 建物面積
- 109.35m²
-
- 間取り
- 4LDK
-
- 土地面積
- 333.58m²
-
- 建ぺい率/容積率
- 60%/150%
-
- 私道負担
- なし
-
- 接道状況
- (公道)南側・幅員約5.5m
-
- 土地権利
- 所有権
-
- 用途地域
- 第二種中高層住居専用地域
-
- 地目
- 宅地
-
- 都市計画
- 市街化区域
-
- 国土法届出
- -
-
- その他制限
- 防火指定:法22条区域
-
- 分譲時 売主
- -
-
- 施工会社
- -
-
- 駐車場
- 有
-
- 取引態様
- 仲介
-
- 現況
- 空家
-
- 引き渡し可能年月
- 相談
-
- その他費用
-
- 備考
- 【設備】
飲用水:公営水道
排水:公共下水道
電気:東京電力(他の小売電気事業者の選択も可能です)
ガス:プロパンガス
※上記建物面積以外にカーポートがあります。(面積不詳、未登記)
※間取図は実際とは多少異なる場合があります。
※図面と現況が異なる場合は現況を優先します。
-
- 情報公開日
- 2026年04月30日
-
- 次回更新予定日
- 2026年05月14日
お問い合わせ先
大和ハウス工業株式会社
静岡支店沼津営業所
TEL0120-019-854
営業時間(受付時間):9:00〜18:00
定休日:水・日・祝日
所在地
沼津市寿町5番7号
JR東海道本線「沼津」駅南口より富士急シティバス富士通前行き乗車約8分、「寿町」バス停下車徒歩1分
担当エリア
沼津市・三島市・富士市・富士宮市・駿東郡・御殿場市・伊豆半島全域
免許番号
宅地建物取引業者免許番号・国土交通大臣(16)第245号
所属団体
(公社)静岡県宅地建物取引業協会会員
東海不動産公正取引協議会加盟




